

備考:
【駐車場】41台 35,000円~52,500円/月額
【駐輪場】有
【共用施設】
・コンシェルジュサービス
・スカイラウンジ(25階 1時間:2,000円 10時~21時 3時間まで)
※駐輪場・バイク置き場・駐車場の空き状況等詳細につきましてはお問い合わせください。
エレベーター,オートロック,宅配ボックス,TVドアホン,駐車場,駐輪場,ラウンジ,コンシェルジュ,敷地内ゴミ置き場,各階ゴミ置き場,内廊下,24時間管理,防犯カメラ,BS,CS,CATV,インターネット
※掲載情報が現況と異なる場合は、現況を優先させていただきます。
※キャンペーン情報は予告なく変更・終了する場合がございます。詳細はお問い合わせください。
※部屋により敷金・礼金・キャンペーンの内容が異なる場合がございますので、詳しい情報は各部屋ページにてご確認ください。
※分譲賃貸は部屋によって所有者が異なる為、内装や設備が変更されている場合がございます。
※ペットの飼育やSOHO利用に関しては、建物自体が許可を出していても、所有者の意向により禁止とされている場合もございますのでご注意ください。
升澤(女性)
2021/06/14
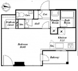
都営大江戸線「赤羽橋駅」から徒歩1分という好立地に物件はございます。
駅を降りた瞬間に立ちはだかる東京タワーとザ・プリンスパークタワー東京は圧巻でした。
近くには芝公園があり、ウォーキングをしたり、読書をしたりする人で賑わっています。
私がご案内した4階のお部屋は、バルコニーが首都高に近かったのですが、窓は防音対策が施されており思っていたよりも騒音は気になりませんでした。
※これらの口コミは、ご成約者様や営業スタッフによる主観的な意見や感想です。建物の価値を客観的に評価するものではありません。あくまでも一つの参考としてご活用ください。
空室確認・内覧予約・空き待ちをご希望のお客様は、こちらよりお気軽にお問い合わせください。
03-6890-7755
