

礼金0キャンペーン中です。
※キャンペーン内容は売買、賃貸、お部屋により異なります。
備考:
【駐車場】機械式駐車場80台(募集対象外住戸優先駐車場20台、身障者用2台含む)、来客用平置駐車場1台 計81台
【バイク置き場】4台
【ミニバイク置き場】4台
【駐輪場】443台
【コンシェルジュサービス】
レセプション
インフォメーションおよび共用施設の予約
備品貸し出し
クリーニング
宅配便の手配
タクシー手配
フラワーデリバリー
【共用施設】
19階
・ビューラウンジ
・オーナーズスイート
屋上
・スカイテラス ※駐輪場・バイク置き場・駐車場の空き状況等詳細につきましてはお問い合わせください。
エレベーター,オートロック,宅配ボックス,TVドアホン,ペット足洗い場,駐車場,バイク置き場,駐輪場,ラウンジ,コンシェルジュ,ゲストルーム,敷地内ゴミ置き場,各階ゴミ置き場,内廊下,インターネット,免震・制震
※掲載情報が現況と異なる場合は、現況を優先させていただきます。
※キャンペーン情報は予告なく変更・終了する場合がございます。詳細はお問い合わせください。
※部屋により敷金・礼金・キャンペーンの内容が異なる場合がございますので、詳しい情報は各部屋ページにてご確認ください。
※分譲賃貸は部屋によって所有者が異なる為、内装や設備が変更されている場合がございます。
※ペットの飼育やSOHO利用に関しては、建物自体が許可を出していても、所有者の意向により禁止とされている場合もございますのでご注意ください。
楠瀬(男性)
2023/10/30
JR山手線「浜松町駅」から徒歩5分、他にも徒歩圏内に大江戸線、ゆりかもめも利用でき非常に便利な立地にございます。
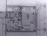
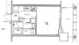
今回、案内したお部屋は西側のお部屋でバルコニーからは芝離宮が一望できました。
共用部にベンダールームもあり、ソフトドリンク、スナック菓子が用意してありました。
また、二重床や二重天井、二重サッシも採用され、防音性能がかなり高いところもポイントです。
お部屋は、ディスポーザー、食洗機等分譲ならではの設備が完備されており、ワンランク上の物件を求める方にオススメです。
※これらの口コミは、ご成約者様や営業スタッフによる主観的な意見や感想です。建物の価値を客観的に評価するものではありません。あくまでも一つの参考としてご活用ください。
空室確認・内覧予約・空き待ちをご希望のお客様は、こちらよりお気軽にお問い合わせください。
03-6890-7755