ジェノヴィア本所吾妻橋スカイガーデン 成約済み物件 (9064-204)

GENOVIA本所吾妻橋skygarden

賃料 ---円 共益費/管理費 ---円
敷金 ---ヶ月 礼金 ---ヶ月
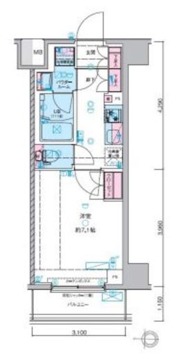
間取り 1K 専有面積 25.57m2
所在階 2階 入居日 ---
情報登録日 2021年10月2日 情報更新日 2022年6月14日
部屋1 洋室7.1帖 部屋2
部屋3 部屋4
部屋5 部屋6
部屋7 部屋8
部屋9 部屋10

ジェノヴィア本所吾妻橋スカイガーデン の新着マッチングメールを登録する

会員登録するとマッチング機能がご利用いただけます。
ご希望の物件をマッチング登録すると、新着情報がいち早くメールで送られてきます。

0人がマッチング登録中!

物件概要

物件名 ジェノヴィア本所吾妻橋スカイガーデン
所在地 東京都墨田区石原3-34-3
交通 都営浅草線本所吾妻橋駅」徒歩10分
都営大江戸線両国駅」徒歩12分


問い合わせ番号 9064-204
物件特徴 ペット可、分譲賃貸
賃料 ---円 共益費/管理費 ---円
間取り 1K 専有面積 25.57m2
敷金 ---ヶ月 礼金 ---ヶ月
仲介手数料 ---ヶ月 その他費用 ---
フリーレント ---ヶ月 更新料 ---ヶ月
築年月 2021年10月 総階数 地上7階 
総戸数 72戸 建物構造 RC造
保険 要加入 保証会社 利用必須
方角 西 契約形態 普通賃貸借契約
ペット 可 大型犬・猫 多頭飼い可 入居可能時期

---

SOHO・事務所 不可  取引態様 媒介

※駐輪場・バイク置き場・駐車場の空き状況等詳細につきましてはお問い合わせください。

備考

建物設備

  • エレベーター
  • オートロック
  • 宅配ボックス
  • TVドアホン
  • 駐車場
  • バイク置き場
  • 駐輪場
  • 敷地内ゴミ置き場
  • 防犯カメラ
  • BS
  • CS
  • CATV
  • インターネット

部屋設備

  • 独立洗面台
  • ウォシュレット
  • 浴室乾燥機
  • システムキッチン
  • ガスコンロ
  • エアコン
  • ダブルロックキー
  • フローリング

※建物周辺情報はGoogleMapを使用しており、物件の表示位置が実際の場所と多少異なる場合があります。

ジェノヴィア本所吾妻橋スカイガーデン の新着マッチングメールを登録する

会員登録するとマッチング機能がご利用いただけます。
ご希望の物件をマッチング登録すると、新着情報がいち早くメールで送られてきます。

0人がマッチング登録中!

【賃貸物件】募集中住戸一覧

7室表示

所在階 間取り 面積 賃料 管理費 敷金/礼金 仲介
手数料
フリー
レント
入居日 検討中 問合せ 詳細
2F 1K 25.57m2 11.2万円 1.5万円 0ヶ月/0ヶ月 0ヶ月 0ヶ月 6月12日   お問い合わせ 詳細
4F 1LDK 41.01m2 17.9万円 2.0万円 0ヶ月/0ヶ月 0ヶ月 0ヶ月 5月3日   お問い合わせ 詳細
4F 1LDK 40.58m2 17.6万円 2.0万円 0ヶ月/0ヶ月 0ヶ月 1ヶ月 5月22日   お問い合わせ 詳細
5F 1K 25.57m2 12.0万円 1.5万円 0ヶ月/0ヶ月 0ヶ月 0ヶ月 6月下旬   お問い合わせ 詳細
5F 1K 25.57m2 12.0万円 1.5万円 0ヶ月/0ヶ月 0ヶ月 0ヶ月 即入居   お問い合わせ 詳細
5F 1K 25.57m2 12.0万円 1.5万円 0ヶ月/0ヶ月 0ヶ月 0ヶ月 7月上旬   お問い合わせ 詳細
6F 1K 25.57m2 11.5万円 1.5万円 0ヶ月/0ヶ月 0ヶ月 0ヶ月 5月上旬   お問い合わせ 詳細
チェックした住戸をまとめてお問い合わせ

最近見た物件

簡単1分!会員登録はこちら