ラ・トゥール渋谷 成約済み物件 (9-1905)

La Tour SHIBUYA

賃料 ---円 共益費/管理費 ---円
敷金 ---ヶ月 礼金 ---ヶ月
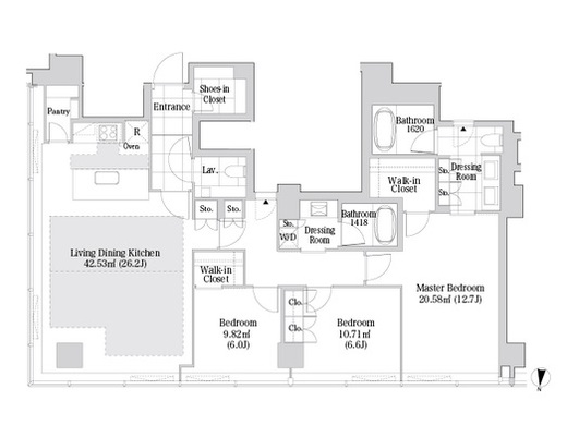
間取り 3LDK+WIC+SIC 専有面積 133.4m2
所在階 19階 入居日 ---
情報登録日 2018年10月20日 情報更新日 2019年12月24日
部屋1 LDK26.2帖 部屋2 洋室12.7帖
部屋3 洋室6.6帖 部屋4 洋室6帖
部屋5 部屋6
部屋7 部屋8
部屋9 部屋10

ラ・トゥール渋谷 の新着マッチングメールを登録する

会員登録するとマッチング機能がご利用いただけます。
ご希望の物件をマッチング登録すると、新着情報がいち早くメールで送られてきます。

0人がマッチング登録中!

物件概要

物件名 ラ・トゥール渋谷
所在地 東京都渋谷区1-2-20
交通 JR山手線渋谷駅」徒歩7分
東京メトロ銀座線表参道駅」徒歩10分
東京メトロ半蔵門線表参道駅」徒歩10分

問い合わせ番号 9-1905
物件特徴 タワーマンション、デザイナーズ、ペット可
賃料 ---円 共益費/管理費 ---円
間取り 3LDK 専有面積 133.4m2
敷金 ---ヶ月 礼金 ---ヶ月
仲介手数料 ---ヶ月 その他費用 ---
フリーレント ---ヶ月 更新料 ---ヶ月
築年月 2010年8月 総階数 地上25階 地下3階
総戸数 121戸 建物構造 SRC造
保険 要加入 保証会社 利用可能
方角 契約形態 定期借家契約 3年間(再契約相談可)
ペット 可  入居可能時期

---

SOHO・事務所 不可  取引態様 媒介

※駐輪場・バイク置き場・駐車場の空き状況等詳細につきましてはお問い合わせください。

備考

※指定保証会社をご利用されない場合敷金1ヵ月追加となります。

建物設備

  • エレベーター
  • オートロック
  • 宅配ボックス
  • TVドアホン
  • トランクルーム
  • 駐車場
  • 大型駐車場
  • バイク置き場
  • 駐輪場
  • ラウンジ
  • キッズルーム
  • コンシェルジュ
  • フィットネスジム
  • パーティールーム
  • 敷地内ゴミ置き場
  • 各階ゴミ置き場
  • 内廊下
  • オール電化
  • 24時間管理
  • 防犯カメラ
  • BS
  • CS
  • CATV
  • インターネット
  • 免震・制震

部屋設備

  • 独立洗面台
  • 追い焚き
  • ウォシュレット
  • 浴室乾燥機
  • 乾燥機付き洗濯機
  • システムキッチン
  • カウンターキッチン
  • ディスポーザー
  • オーブン
  • 食器洗浄機
  • 浄水器
  • IHコンロ
  • 床暖房
  • エアコン
  • シューズインクローゼット
  • ウォークインクローゼット
  • ダブルロックキー
  • フローリング
  • 角部屋

※建物周辺情報はGoogleMapを使用しており、物件の表示位置が実際の場所と多少異なる場合があります。

ラ・トゥール渋谷 の新着マッチングメールを登録する

会員登録するとマッチング機能がご利用いただけます。
ご希望の物件をマッチング登録すると、新着情報がいち早くメールで送られてきます。

0人がマッチング登録中!

【賃貸物件】募集中住戸一覧

8室表示

所在階 間取り 面積 賃料 管理費 敷金/礼金 仲介
手数料
フリー
レント
入居日 検討中 問合せ 詳細
13F 1LDK 56.43m2 55.0万円 0万円 2ヶ月/0ヶ月 0ヶ月 0ヶ月 即入居   お問い合わせ 詳細
15F 1R 51.12m2 49.9万円 0万円 2ヶ月/0ヶ月 0ヶ月 0ヶ月 即入居   お問い合わせ 詳細
15F 1LDK 91.42m2 99.0万円 0万円 2ヶ月/0ヶ月 0ヶ月 0ヶ月 即入居   お問い合わせ 詳細
16F 1LDK 56.43m2 55.0万円 0万円 2ヶ月/0ヶ月 0ヶ月 0ヶ月 即入居   お問い合わせ 詳細
17F 1LDK 63.12m2 69.0万円 0万円 2ヶ月/0ヶ月 0ヶ月 0ヶ月 相談   お問い合わせ 詳細
18F 1LDK 59.88m2 63.0万円 0万円 2ヶ月/0ヶ月 0ヶ月 0ヶ月 即入居   お問い合わせ 詳細
20F 4SLDK 228.93m2 299.0万円 0万円 2ヶ月/0ヶ月 0ヶ月 0ヶ月 相談   お問い合わせ 詳細
21F 1LDK 59.88m2 63.0万円 0万円 2ヶ月/0ヶ月 0ヶ月 0ヶ月 即入居   お問い合わせ 詳細
チェックした住戸をまとめてお問い合わせ

最近見た物件

簡単1分!会員登録はこちら