L・BASE押上North・South 成約済み物件 (8228-S708)

L・BASE押上North・South

賃料 ---円 共益費/管理費 ---円
敷金 ---ヶ月 礼金 ---ヶ月
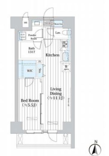
間取り 1LDK+WIC 専有面積 40.01m2
所在階 7階 入居日 ---
情報登録日 2024年12月12日 情報更新日 2025年12月1日
部屋1 LDK11.1帖 部屋2 洋室5.5帖
部屋3 部屋4
部屋5 部屋6
部屋7 部屋8
部屋9 部屋10

L・BASE押上North・South の新着マッチングメールを登録する

会員登録するとマッチング機能がご利用いただけます。
ご希望の物件をマッチング登録すると、新着情報がいち早くメールで送られてきます。

0人がマッチング登録中!

物件概要

物件名 L・BASE押上North・South
所在地 東京都墨田区横川2-13-4
交通 東京メトロ半蔵門線押上(スカイツリー前)駅」徒歩8分
都営浅草線押上(スカイツリー前)駅」徒歩8分
東武伊勢崎線とうきょうスカイツリー駅」徒歩11分
都営浅草線本所吾妻橋駅」徒歩13分
JR総武本線錦糸町駅」徒歩15分
問い合わせ番号 8228-S708
物件特徴 なし
賃料 ---円 共益費/管理費 ---円
間取り 1LDK 専有面積 40.01m2
敷金 ---ヶ月 礼金 ---ヶ月
仲介手数料 ---ヶ月 その他費用 ---
フリーレント ---ヶ月 更新料 ---ヶ月
築年月 2021年3月 総階数 地上7階 
総戸数 57戸 建物構造 RC造
保険 要加入 保証会社 利用必須
方角 契約形態 普通賃貸借契約
ペット 不可  入居可能時期

---

SOHO・事務所 不可  取引態様 媒介

※駐輪場・バイク置き場・駐車場の空き状況等詳細につきましてはお問い合わせください。

備考

建物設備

  • エレベーター
  • オートロック
  • 宅配ボックス
  • TVドアホン
  • 駐車場
  • 大型駐車場
  • バイク置き場
  • 駐輪場
  • 敷地内ゴミ置き場
  • 防犯カメラ
  • BS
  • CS
  • CATV
  • インターネット

部屋設備

  • 独立洗面台
  • 追い焚き
  • ウォシュレット
  • 浴室乾燥機
  • システムキッチン
  • ガスコンロ
  • エアコン
  • ウォークインクローゼット
  • ダブルロックキー
  • フローリング
  • 最上階
  • 南向き

※建物周辺情報はGoogleMapを使用しており、物件の表示位置が実際の場所と多少異なる場合があります。

L・BASE押上North・South の新着マッチングメールを登録する

会員登録するとマッチング機能がご利用いただけます。
ご希望の物件をマッチング登録すると、新着情報がいち早くメールで送られてきます。

0人がマッチング登録中!

【賃貸物件】募集中住戸一覧

11室表示

所在階 間取り 面積 賃料 管理費 敷金/礼金 仲介
手数料
フリー
レント
入居日 検討中 問合せ 詳細
2F 1K 25m2 12.1万円 1.2万円 0ヶ月/0ヶ月 0ヶ月 0ヶ月 即入居   お問い合わせ 詳細
2F 1LDK 40m2 18.6万円 1.8万円 0ヶ月/0ヶ月 0ヶ月 0ヶ月 即入居   お問い合わせ 詳細
3F 1LDK 40m2 18.8万円 1.8万円 0ヶ月/0ヶ月 0ヶ月 0ヶ月 即入居   お問い合わせ 詳細
NEW
3F
1LDK 40.02m2 19.4万円 1.2万円 0ヶ月/1ヶ月 0ヶ月 0ヶ月 7月下旬   お問い合わせ 詳細
4F 1K 25m2 12.3万円 1.2万円 0ヶ月/1ヶ月 0ヶ月 0ヶ月 6月中旬   お問い合わせ 詳細
NEW
4F
1LDK 40.02m2 19.6万円 1.2万円 0ヶ月/1ヶ月 0ヶ月 0ヶ月 7月中旬   お問い合わせ 詳細
NEW
5F
1K 25.01m2 12.4万円 1.2万円 0ヶ月/0ヶ月 0ヶ月 0ヶ月 7月中旬   お問い合わせ 詳細
5F 1K 25m2 12.4万円 1.2万円 0ヶ月/1ヶ月 0ヶ月 0ヶ月 7月上旬   お問い合わせ 詳細
6F 1K 25m2 12.6万円 1.2万円 0ヶ月/0ヶ月 0ヶ月 0ヶ月 即入居   お問い合わせ 詳細
6F 1LDK 40.02m2 19.2万円 1.8万円 0ヶ月/0ヶ月 0ヶ月 0ヶ月 即入居   お問い合わせ 詳細
7F 1K 25m2 13.0万円 1.2万円 0ヶ月/1ヶ月 0ヶ月 0ヶ月 即入居   お問い合わせ 詳細

その他1件を表示

チェックした住戸をまとめてお問い合わせ
簡単1分!会員登録はこちら