白金ザ・スカイ 成約済み物件 (8037-E1814)

SHIROKANE The SKY

賃料 ---円 共益費/管理費 ---円
敷金 ---ヶ月 礼金 ---ヶ月
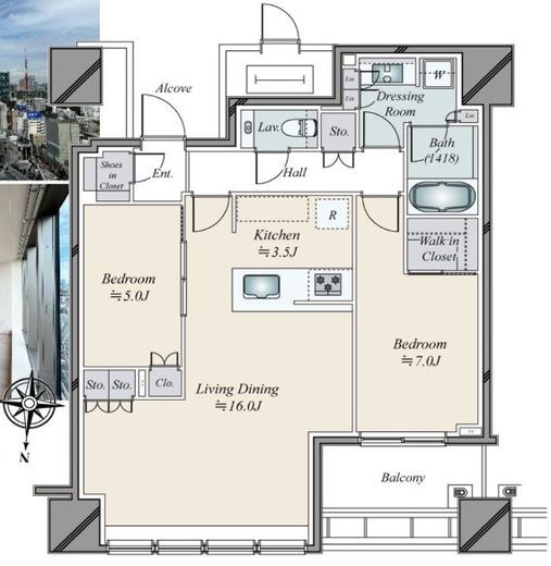
間取り 2LDK+WIC+SIC 専有面積 73.35m2
所在階 18階 入居日 ---
情報登録日 2025年10月14日 情報更新日 2025年10月16日
部屋1 LDK19.5帖 部屋2 洋室7帖
部屋3 洋室5帖 部屋4
部屋5 部屋6
部屋7 部屋8
部屋9 部屋10

白金ザ・スカイ の新着マッチングメールを登録する

会員登録するとマッチング機能がご利用いただけます。
ご希望の物件をマッチング登録すると、新着情報がいち早くメールで送られてきます。

3人がマッチング登録中!

物件概要

物件名 白金ザ・スカイ
所在地 東京都港区白金1-2-1
交通 東京メトロ南北線白金高輪駅」徒歩3分
都営三田線白金高輪駅」徒歩3分
東京メトロ南北線麻布十番駅」徒歩12分
都営大江戸線麻布十番駅」徒歩12分
問い合わせ番号 8037-E1814
物件特徴 タワーマンション、分譲賃貸
賃料 ---円 共益費/管理費 ---円
間取り 2LDK 専有面積 73.35m2
敷金 ---ヶ月 礼金 ---ヶ月
仲介手数料 ---ヶ月 その他費用 ---
フリーレント ---ヶ月 更新料 ---ヶ月
築年月 2022年12月 総階数 地上45階 地下1階
総戸数 1,247戸 建物構造 RC造
保険 要加入 保証会社 利用必須
方角 契約形態 定期借家契約 3年間
ペット 不可  入居可能時期

---

SOHO・事務所 不可  取引態様 媒介

※駐輪場・バイク置き場・駐車場の空き状況等詳細につきましてはお問い合わせください。

備考

建物設備

  • エレベーター
  • オートロック
  • 宅配ボックス
  • TVドアホン
  • 駐車場
  • 大型駐車場
  • バイク置き場
  • 駐輪場
  • ラウンジ
  • キッズルーム
  • コンシェルジュ
  • フィットネスジム
  • ゲストルーム
  • パーティールーム
  • ゴルフレンジ
  • 敷地内ゴミ置き場
  • 内廊下
  • 防犯カメラ
  • BS
  • CS
  • CATV
  • インターネット

部屋設備

  • 独立洗面台
  • 追い焚き
  • ウォシュレット
  • 浴室乾燥機
  • システムキッチン
  • カウンターキッチン
  • ディスポーザー
  • 食器洗浄機
  • 浄水器
  • ガスコンロ
  • 床暖房
  • エアコン
  • シューズインクローゼット
  • ウォークインクローゼット
  • ダブルロックキー
  • フローリング

※建物周辺情報はGoogleMapを使用しており、物件の表示位置が実際の場所と多少異なる場合があります。

白金ザ・スカイ の新着マッチングメールを登録する

会員登録するとマッチング機能がご利用いただけます。
ご希望の物件をマッチング登録すると、新着情報がいち早くメールで送られてきます。

3人がマッチング登録中!

【賃貸物件】募集中住戸一覧

24室表示

所在階 間取り 面積 賃料 管理費 敷金/礼金 仲介
手数料
フリー
レント
入居日 検討中 問合せ 詳細
4F 1LDK 40.23m2 29.0万円 0万円 2ヶ月/1ヶ月 1ヶ月 0ヶ月 相談   お問い合わせ 詳細
4F 1R 30.18m2 22.0万円 0万円 1ヶ月/1ヶ月 1ヶ月 0ヶ月 即入居   お問い合わせ 詳細
7F 1R 24.04m2 23.9万円 0万円 0ヶ月/0ヶ月 0ヶ月 0ヶ月 即入居   お問い合わせ 詳細
7F 3LDK 83.41m2 65.0万円 0万円 1ヶ月/1ヶ月 1ヶ月 0ヶ月 相談   お問い合わせ 詳細
8F 1LDK 35.15m2 25.0万円 2.0万円 1ヶ月/1ヶ月 1ヶ月 0ヶ月 相談   お問い合わせ 詳細
10F 2LDK 55.88m2 47.0万円 3.0万円 1ヶ月/1ヶ月 0ヶ月 0ヶ月 相談   お問い合わせ 詳細
12F 3LDK 75m2 64.0万円 1.5万円 0ヶ月/2ヶ月 1ヶ月 0ヶ月 即入居   お問い合わせ 詳細
13F 2LDK 55.89m2 44.0万円 0万円 1ヶ月/1ヶ月 1ヶ月 0ヶ月 即入居   お問い合わせ 詳細
13F 1R 24.78m2 24.2万円 0万円 0ヶ月/0ヶ月 0ヶ月 0ヶ月 6月中旬   お問い合わせ 詳細
14F 2LDK 55.89m2 44.0万円 0万円 1ヶ月/1ヶ月 1ヶ月 0ヶ月 即入居   お問い合わせ 詳細
14F 1LDK 44.16m2 36.0万円 3.0万円 1ヶ月/1ヶ月 0ヶ月 0ヶ月 即入居   お問い合わせ 詳細
15F 2LDK 56.72m2 47.0万円 3.0万円 1ヶ月/1ヶ月 0ヶ月 0ヶ月 即入居   お問い合わせ 詳細
16F 1LDK 50.07m2 35.8万円 2.0万円 1ヶ月/1ヶ月 1ヶ月 0ヶ月 即入居   お問い合わせ 詳細
17F 1LDK 41.57m2 33.0万円 0万円 1ヶ月/1ヶ月 1ヶ月 0ヶ月 即入居   お問い合わせ 詳細
18F 2LDK 55.89m2 48.0万円 0万円 1ヶ月/1ヶ月 1ヶ月 0ヶ月 即入居   お問い合わせ 詳細
19F 3LDK 84.66m2 75.0万円 0万円 1ヶ月/1ヶ月 1ヶ月 0ヶ月 即入居   お問い合わせ 詳細
19F 2LDK 57.67m2 47.0万円 0万円 2ヶ月/1ヶ月 1ヶ月 0ヶ月 即入居   お問い合わせ 詳細
21F 3LDK 84.66m2 76.0万円 3.0万円 1ヶ月/1ヶ月 1ヶ月 0ヶ月 即入居   お問い合わせ 詳細
24F 2LDK 69.04m2 57.0万円 3.0万円 1ヶ月/1ヶ月 1ヶ月 0ヶ月 即入居   お問い合わせ 詳細
29F 3LDK 80.82m2 69.0万円 2.0万円 1ヶ月/1ヶ月 1ヶ月 0ヶ月 6月中旬   お問い合わせ 詳細
29F 1LDK 54.5m2 47.0万円 2.0万円 1ヶ月/1ヶ月 0.5ヶ月 0ヶ月 即入居   お問い合わせ 詳細
NEW
33F
2LDK 57.43m2 52.0万円 3.0万円 1ヶ月/1ヶ月 1ヶ月 0ヶ月 7月下旬   お問い合わせ 詳細
37F 2LDK 86.67m2 79.5万円 0万円 2ヶ月/1ヶ月 1ヶ月 0ヶ月 即入居   お問い合わせ 詳細
38F 3LDK 86.67m2 85.0万円 0万円 2ヶ月/1ヶ月 1ヶ月 0ヶ月 即入居   お問い合わせ 詳細

その他14件を表示

チェックした住戸をまとめてお問い合わせ

最近見た物件

簡単1分!会員登録はこちら