パークタワー晴海 成約済み物件 (6648-23F1)

PARK TOWER 晴海

賃料 ---円 共益費/管理費 ---円
敷金 ---ヶ月 礼金 ---ヶ月
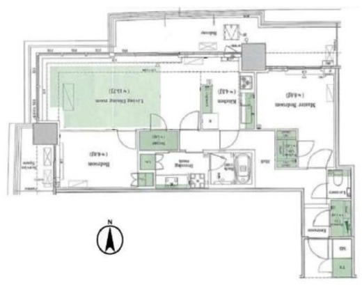
間取り 2LDK+WIC+SIC 専有面積 82.27m2
所在階 23階 入居日 ---
情報登録日 2025年11月16日 情報更新日 2025年12月25日
部屋1 LDK 部屋2 洋室
部屋3 洋室 部屋4
部屋5 部屋6
部屋7 部屋8
部屋9 部屋10

パークタワー晴海 の新着マッチングメールを登録する

会員登録するとマッチング機能がご利用いただけます。
ご希望の物件をマッチング登録すると、新着情報がいち早くメールで送られてきます。

1人がマッチング登録中!

物件概要

物件名 パークタワー晴海
所在地 東京都中央区晴海2-2-42
交通 都営大江戸線月島駅」徒歩12分
東京メトロ有楽町線月島駅」徒歩12分
都営大江戸線勝どき駅」徒歩15分

問い合わせ番号 6648-23F1
物件特徴 タワーマンション、分譲賃貸
賃料 ---円 共益費/管理費 ---円
間取り 2LDK 専有面積 82.27m2
敷金 ---ヶ月 礼金 ---ヶ月
仲介手数料 ---ヶ月 その他費用 ---
フリーレント ---ヶ月 更新料 ---ヶ月
築年月 2019年2月 総階数 地上48階 地下1階
総戸数 1,076戸 建物構造 RC造
保険 要加入 保証会社 利用必須
方角 契約形態 普通賃貸借契約
ペット 不可  入居可能時期

---

SOHO・事務所 不可  取引態様 媒介

※駐輪場・バイク置き場・駐車場の空き状況等詳細につきましてはお問い合わせください。

備考

建物設備

  • エレベーター
  • オートロック
  • 宅配ボックス
  • TVドアホン
  • トランクルーム
  • 駐車場
  • 大型駐車場
  • バイク置き場
  • 駐輪場
  • ラウンジ
  • コンシェルジュ
  • フィットネスジム
  • ゲストルーム
  • パーティールーム
  • 敷地内ゴミ置き場
  • 内廊下
  • 24時間管理
  • 防犯カメラ
  • BS
  • CS
  • CATV
  • インターネット

部屋設備

  • 独立洗面台
  • 追い焚き
  • ウォシュレット
  • 浴室乾燥機
  • システムキッチン
  • ガスコンロ
  • エアコン
  • シューズインクローゼット
  • ウォークインクローゼット
  • ダブルロックキー
  • フローリング

※建物周辺情報はGoogleMapを使用しており、物件の表示位置が実際の場所と多少異なる場合があります。

パークタワー晴海 の新着マッチングメールを登録する

会員登録するとマッチング機能がご利用いただけます。
ご希望の物件をマッチング登録すると、新着情報がいち早くメールで送られてきます。

1人がマッチング登録中!

【賃貸物件】募集中住戸一覧

8室表示

所在階 間取り 面積 賃料 管理費 敷金/礼金 仲介
手数料
フリー
レント
入居日 検討中 問合せ 詳細
15F 2LDK 82.85m2 50.0万円 2.0万円 1ヶ月/1ヶ月 0.5ヶ月 0ヶ月 即入居   お問い合わせ 詳細
26F 3LDK 70.09m2 43.0万円 3.0万円 1ヶ月/2ヶ月 1ヶ月 0ヶ月 即入居   お問い合わせ 詳細
27F 3LDK 67.82m2 34.0万円 2.0万円 1ヶ月/1ヶ月 1ヶ月 0ヶ月 即入居   お問い合わせ 詳細
32F 3LDK 69.25m2 34.0万円 1.5万円 1ヶ月/1ヶ月 1ヶ月 0ヶ月 相談   お問い合わせ 詳細
33F 1LDK 41.83m2 24.9万円 2.0万円 1ヶ月/1ヶ月 1ヶ月 0ヶ月 6月下旬   お問い合わせ 詳細
44F 2LDK 68.42m2 33.0万円 3.0万円 1ヶ月/1ヶ月 1ヶ月 0ヶ月 即入居   お問い合わせ 詳細
45F 1LDK 44.3m2 28.0万円 0万円 1ヶ月/1ヶ月 1ヶ月 0ヶ月 即入居   お問い合わせ 詳細
48F 3LDK 106.05m2 95.0万円 2.0万円 1ヶ月/1ヶ月 0.5ヶ月 0ヶ月 即入居   お問い合わせ 詳細
チェックした住戸をまとめてお問い合わせ

最近見た物件

簡単1分!会員登録はこちら