文京グリーンコートビュータワー本駒込 成約済み物件 (5618-B311)

文京グリーンコートビュータワー本駒込

賃料 ---円 共益費/管理費 ---円
敷金 ---ヶ月 礼金 ---ヶ月
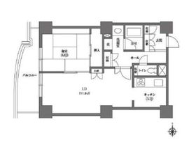
間取り 1LDK 専有面積 57.55m2
所在階 3階 入居日 ---
情報登録日 2024年4月11日 情報更新日 2024年7月7日
部屋1 LDK15.2帖 部屋2 和室6帖
部屋3 部屋4
部屋5 部屋6
部屋7 部屋8
部屋9 部屋10

文京グリーンコートビュータワー本駒込 の新着マッチングメールを登録する

会員登録するとマッチング機能がご利用いただけます。
ご希望の物件をマッチング登録すると、新着情報がいち早くメールで送られてきます。

0人がマッチング登録中!

物件概要

物件名 文京グリーンコートビュータワー本駒込
所在地 東京都文京区本駒込2-28-1
交通 都営三田線千石駅」徒歩4分
JR山手線駒込駅」徒歩11分
東京メトロ南北線駒込駅」徒歩11分
東京メトロ南北線本駒込駅」徒歩11分
JR山手線巣鴨駅」徒歩12分
問い合わせ番号 5618-B311
物件特徴 タワーマンション
賃料 ---円 共益費/管理費 ---円
間取り 1LDK 専有面積 57.55m2
敷金 ---ヶ月 礼金 ---ヶ月
仲介手数料 ---ヶ月 その他費用 ---
フリーレント ---ヶ月 更新料 ---ヶ月
築年月 1998年3月 総階数 地上22階 
総戸数 401戸 建物構造 RC造
保険 要加入 保証会社 利用必須
方角 西 契約形態 普通賃貸借契約
ペット 不可  入居可能時期

---

SOHO・事務所 不可  取引態様 媒介

※駐輪場・バイク置き場・駐車場の空き状況等詳細につきましてはお問い合わせください。

備考

※指定保証会社を利用されない場合は敷金1ヶ月追加となります。

建物設備

  • エレベーター
  • オートロック
  • 宅配ボックス
  • TVドアホン
  • 敷地内ゴミ置き場
  • インターネット

部屋設備

  • 独立洗面台
  • 追い焚き
  • ウォシュレット
  • 浴室乾燥機
  • システムキッチン
  • ガスコンロ
  • エアコン
  • ダブルロックキー
  • フローリング

※建物周辺情報はGoogleMapを使用しており、物件の表示位置が実際の場所と多少異なる場合があります。

文京グリーンコートビュータワー本駒込 の新着マッチングメールを登録する

会員登録するとマッチング機能がご利用いただけます。
ご希望の物件をマッチング登録すると、新着情報がいち早くメールで送られてきます。

0人がマッチング登録中!

【賃貸物件】募集中住戸一覧

5室表示

所在階 間取り 面積 賃料 管理費 敷金/礼金 仲介
手数料
フリー
レント
入居日 検討中 問合せ 詳細
4F 2LDK 73.98m2 25.5万円 1.5万円 1ヶ月/1.5ヶ月 1ヶ月 0ヶ月 7月上旬   お問い合わせ 詳細
8F 1LDK 50.93m2 18.4万円 1.5万円 1ヶ月/1.5ヶ月 1ヶ月 0ヶ月 7月上旬   お問い合わせ 詳細
11F 1LDK 57.55m2 21.2万円 1.5万円 1ヶ月/1.5ヶ月 1ヶ月 0ヶ月 7月上旬   お問い合わせ 詳細
12F 1LDK 60.63m2 21.0万円 1.5万円 1ヶ月/1ヶ月 1ヶ月 0ヶ月 即入居   お問い合わせ 詳細
14F 2K 66.25m2 25.5万円 1.5万円 1ヶ月/1.5ヶ月 1ヶ月 0ヶ月 7月中旬   お問い合わせ 詳細
チェックした住戸をまとめてお問い合わせ

最近見た物件

簡単1分!会員登録はこちら