レジディアタワー目黒不動前 成約済み物件 (479-2003)

RESIDIATOWER目黒不動前

賃料 ---円 共益費/管理費 ---円
敷金 ---ヶ月 礼金 ---ヶ月
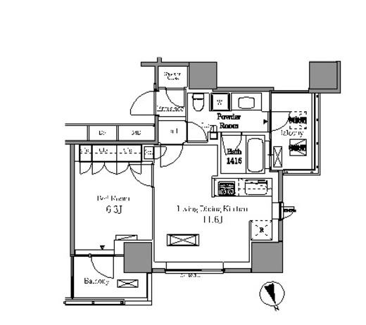
間取り 1LDK+SIC 専有面積 43.97m2
所在階 20階 入居日 ---
情報登録日 2026年1月31日 情報更新日 2026年3月2日
部屋1 LDK11.6帖 部屋2 洋室6.3帖
部屋3 部屋4
部屋5 部屋6
部屋7 部屋8
部屋9 部屋10

レジディアタワー目黒不動前 の新着マッチングメールを登録する

会員登録するとマッチング機能がご利用いただけます。
ご希望の物件をマッチング登録すると、新着情報がいち早くメールで送られてきます。

0人がマッチング登録中!

物件概要

物件名 レジディアタワー目黒不動前
所在地 東京都品川区西五反田3-7-6
交通 JR山手線五反田駅」徒歩7分
東急目黒線不動前駅」徒歩8分
JR山手線目黒駅」徒歩14分

問い合わせ番号 479-2003
物件特徴 タワーマンション、デザイナーズ、ペット可
賃料 ---円 共益費/管理費 ---円
間取り 1LDK 専有面積 43.97m2
敷金 ---ヶ月 礼金 ---ヶ月
仲介手数料 ---ヶ月 その他費用 ---
フリーレント ---ヶ月 更新料 ---ヶ月
築年月 2007年2月 総階数 地上30階 地下3階
総戸数 358戸 建物構造 RC造
保険 要加入 保証会社 利用必須
方角 契約形態 普通賃貸借契約
ペット 可  入居可能時期

---

SOHO・事務所 不可  取引態様 媒介

※駐輪場・バイク置き場・駐車場の空き状況等詳細につきましてはお問い合わせください。

備考

建物設備

  • エレベーター
  • オートロック
  • 宅配ボックス
  • TVドアホン
  • トランクルーム
  • 駐車場
  • バイク置き場
  • 駐輪場
  • ラウンジ
  • コンシェルジュ
  • フィットネスジム
  • 敷地内ゴミ置き場
  • 各階ゴミ置き場
  • 内廊下
  • 24時間管理
  • 防犯カメラ
  • BS
  • CS
  • CATV
  • インターネット

部屋設備

  • 独立洗面台
  • 追い焚き
  • ウォシュレット
  • 浴室乾燥機
  • システムキッチン
  • ガスコンロ
  • 床暖房
  • エアコン
  • シューズインクローゼット
  • ダブルロックキー
  • フローリング
  • 角部屋

※建物周辺情報はGoogleMapを使用しており、物件の表示位置が実際の場所と多少異なる場合があります。

レジディアタワー目黒不動前 の新着マッチングメールを登録する

会員登録するとマッチング機能がご利用いただけます。
ご希望の物件をマッチング登録すると、新着情報がいち早くメールで送られてきます。

0人がマッチング登録中!

【賃貸物件】募集中住戸一覧

28室表示

所在階 間取り 面積 賃料 管理費 敷金/礼金 仲介
手数料
フリー
レント
入居日 検討中 問合せ 詳細
3F 1LDK 38.74m2 22.8万円 2.0万円 1ヶ月/1ヶ月 0.5ヶ月 0ヶ月 相談   お問い合わせ 詳細
4F 1LDK 43.97m2 26.0万円 2.0万円 1ヶ月/1ヶ月 0.5ヶ月 0ヶ月 相談   お問い合わせ 詳細
5F 2LDK 55.17m2 28.4万円 2.5万円 1ヶ月/0ヶ月 0.5ヶ月 0ヶ月 即入居   お問い合わせ 詳細
6F 1LDK 57.34m2 29.1万円 2.5万円 1ヶ月/0ヶ月 0.5ヶ月 0ヶ月 即入居   お問い合わせ 詳細
7F 1LDK 37.19m2 22.0万円 2.0万円 1ヶ月/0ヶ月 0.5ヶ月 0ヶ月 即入居   お問い合わせ 詳細
7F 1LDK 43.97m2 26.3万円 2.0万円 1ヶ月/0ヶ月 0.5ヶ月 0ヶ月 即入居   お問い合わせ 詳細
7F 2LDK 72.5m2 41.3万円 2.5万円 1ヶ月/0ヶ月 0ヶ月 0ヶ月 即入居   お問い合わせ 詳細
7F 1LDK 43.87m2 25.0万円 2.0万円 1ヶ月/0ヶ月 0.5ヶ月 0ヶ月 6月下旬   お問い合わせ 詳細
10F 1LDK 55.06m2 29.5万円 2.5万円 1ヶ月/1ヶ月 0.5ヶ月 0ヶ月 即入居   お問い合わせ 詳細
11F 2LDK 55.17m2 32.9万円 2.5万円 1ヶ月/0ヶ月 0.5ヶ月 0ヶ月 即入居   お問い合わせ 詳細
11F 1LDK 38.74m2 24.8万円 2.0万円 1ヶ月/0ヶ月 0.5ヶ月 0ヶ月 即入居   お問い合わせ 詳細
13F 1SLDK 55.34m2 32.5万円 2.5万円 1ヶ月/0ヶ月 0ヶ月 0ヶ月 即入居   お問い合わせ 詳細
16F 1LDK 43.97m2 26.7万円 2.0万円 1ヶ月/0ヶ月 0.5ヶ月 0ヶ月 即入居   お問い合わせ 詳細
16F 2LDK 55.17m2 34.3万円 2.5万円 1ヶ月/0ヶ月 0.5ヶ月 0ヶ月 相談   お問い合わせ 詳細
17F 2LDK 55.17m2 30.3万円 2.5万円 1ヶ月/1ヶ月 0.5ヶ月 0ヶ月 相談   お問い合わせ 詳細
18F 1LDK 43.97m2 27.2万円 2.0万円 1ヶ月/0ヶ月 0.5ヶ月 0ヶ月 即入居   お問い合わせ 詳細
19F 2LDK 55.17m2 31.6万円 2.5万円 1ヶ月/0ヶ月 0.5ヶ月 0ヶ月 6月下旬   お問い合わせ 詳細
20F 3LDK 76.92m2 43.8万円 2.5万円 1ヶ月/0ヶ月 0ヶ月 0ヶ月 即入居   お問い合わせ 詳細
22F 1LDK 49.26m2 28.5万円 2.0万円 1ヶ月/0ヶ月 0ヶ月 0ヶ月 即入居   お問い合わせ 詳細
22F 1SLDK 81.31m2 52.4万円 2.5万円 1ヶ月/0ヶ月 0.5ヶ月 0ヶ月 即入居   お問い合わせ 詳細
23F 2LDK 55.63m2 32.1万円 2.5万円 1ヶ月/1ヶ月 0.5ヶ月 0ヶ月 相談   お問い合わせ 詳細
23F 3LDK 85.39m2 54.1万円 2.5万円 1ヶ月/1ヶ月 0ヶ月 0ヶ月 即入居   お問い合わせ 詳細
25F 3LDK 79.9m2 49.5万円 2.5万円 1ヶ月/1ヶ月 0.5ヶ月 0ヶ月 即入居   お問い合わせ 詳細
25F 1SLDK 55.39m2 35.0万円 2.5万円 1ヶ月/1ヶ月 0.5ヶ月 0ヶ月 相談   お問い合わせ 詳細
25F 1SLDK 55.63m2 35.5万円 2.5万円 1ヶ月/0ヶ月 0ヶ月 0ヶ月 即入居   お問い合わせ 詳細
27F 1SLDK 55.39m2 29.5万円 2.5万円 1ヶ月/0ヶ月 0.5ヶ月 0ヶ月 即入居   お問い合わせ 詳細
28F 1SLDK 74.03m2 41.7万円 2.5万円 1ヶ月/0ヶ月 0ヶ月 0ヶ月 即入居   お問い合わせ 詳細
29F 1LDK 49.26m2 30.5万円 2.0万円 1ヶ月/0ヶ月 0ヶ月 0ヶ月 即入居   お問い合わせ 詳細

その他18件を表示

チェックした住戸をまとめてお問い合わせ

最近見た物件

簡単1分!会員登録はこちら