カスタリア人形町3 成約済み物件 (2202-804)

カスタリア人形町3

賃料 ---円 共益費/管理費 ---円
敷金 ---ヶ月 礼金 ---ヶ月
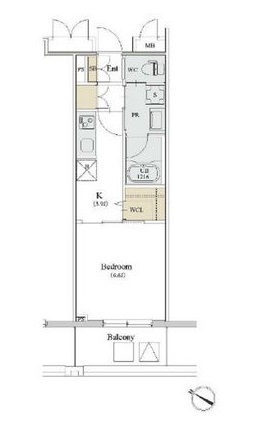
間取り 1K+WIC 専有面積 28.98m2
所在階 8階 入居日 ---
情報登録日 2026年3月12日 情報更新日 2026年4月13日
部屋1 洋室6.6帖 部屋2 K3.9帖
部屋3 部屋4
部屋5 部屋6
部屋7 部屋8
部屋9 部屋10

カスタリア人形町3 の新着マッチングメールを登録する

会員登録するとマッチング機能がご利用いただけます。
ご希望の物件をマッチング登録すると、新着情報がいち早くメールで送られてきます。

0人がマッチング登録中!

物件概要

物件名 カスタリア人形町3
所在地 東京都中央区日本橋人形町1-2
交通 東京メトロ日比谷線人形町駅」徒歩4分
都営浅草線人形町駅」徒歩4分
東京メトロ半蔵門線水天宮前駅」徒歩8分
東京メトロ銀座線三越前駅」徒歩10分
東京メトロ半蔵門線三越前駅」徒歩10分
問い合わせ番号 2202-804
物件特徴 ペット可
賃料 ---円 共益費/管理費 ---円
間取り 1K 専有面積 28.98m2
敷金 ---ヶ月 礼金 ---ヶ月
仲介手数料 ---ヶ月 その他費用 ---
フリーレント ---ヶ月 更新料 ---ヶ月
築年月 2014年10月 総階数 地上10階 地下1階
総戸数 72戸 建物構造 RC造
保険 要加入 保証会社 利用必須
方角 南西 契約形態 普通賃貸借契約
ペット 可 敷金1ヶ月積み増し 入居可能時期

---

SOHO・事務所 不可  取引態様 媒介

※駐輪場・バイク置き場・駐車場の空き状況等詳細につきましてはお問い合わせください。

備考

※指定保証会社を利用されない場合は敷金1ヶ月追加となります。

建物設備

  • エレベーター
  • オートロック
  • 宅配ボックス
  • TVドアホン
  • 駐車場
  • 大型駐車場
  • 駐輪場
  • 敷地内ゴミ置き場
  • 24時間管理
  • 防犯カメラ
  • BS
  • CS
  • CATV
  • インターネット
  • 閑静な住宅街

部屋設備

  • 独立洗面台
  • 追い焚き
  • ウォシュレット
  • 浴室乾燥機
  • システムキッチン
  • ガスコンロ
  • エアコン
  • ウォークインクローゼット
  • ダブルロックキー
  • フローリング
  • 南向き

※建物周辺情報はGoogleMapを使用しており、物件の表示位置が実際の場所と多少異なる場合があります。

カスタリア人形町3 の新着マッチングメールを登録する

会員登録するとマッチング機能がご利用いただけます。
ご希望の物件をマッチング登録すると、新着情報がいち早くメールで送られてきます。

0人がマッチング登録中!

【賃貸物件】募集中住戸一覧

5室表示

所在階 間取り 面積 賃料 管理費 敷金/礼金 仲介
手数料
フリー
レント
入居日 検討中 問合せ 詳細
3F 1LDK 48.32m2 24.2万円 1.0万円 1ヶ月/1ヶ月 0ヶ月 0ヶ月 即入居   お問い合わせ 詳細
4F 1K 28.98m2 13.5万円 0.8万円 1ヶ月/1ヶ月 0ヶ月 0ヶ月 6月30日   お問い合わせ 詳細
4F 1K 26.88m2 12.1万円 1.0万円 1ヶ月/1ヶ月 0ヶ月 0ヶ月 即入居   お問い合わせ 詳細
7F 1LDK 48.32m2 25.2万円 1.0万円 1ヶ月/1ヶ月 0ヶ月 0ヶ月 5月30日   お問い合わせ 詳細
9F 1K 28.98m2 14.1万円 0.8万円 1ヶ月/1ヶ月 0ヶ月 0ヶ月 即入居   お問い合わせ 詳細
チェックした住戸をまとめてお問い合わせ

最近見た物件

簡単1分!会員登録はこちら