富久クロスコンフォートタワー(Tomihisa Cross) 成約済み物件 (2169-37F7)

Tomihisa Cross Comfort Towers

賃料 ---円 共益費/管理費 ---円
敷金 ---ヶ月 礼金 ---ヶ月
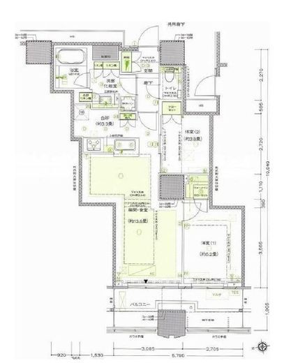
間取り 2LDK+WIC 専有面積 62.5m2
所在階 37階 入居日 ---
情報登録日 2025年11月14日 情報更新日 2025年11月14日
部屋1 LDK16.9帖 部屋2 洋室6.2帖
部屋3 洋室3.8帖 部屋4
部屋5 部屋6
部屋7 部屋8
部屋9 部屋10

富久クロスコンフォートタワー(Tomihisa Cross) の新着マッチングメールを登録する

会員登録するとマッチング機能がご利用いただけます。
ご希望の物件をマッチング登録すると、新着情報がいち早くメールで送られてきます。

1人がマッチング登録中!

物件概要

物件名 富久クロスコンフォートタワー(Tomihisa Cross)
所在地 東京都新宿区富久町15-1
交通 東京メトロ丸ノ内線新宿御苑前駅」徒歩5分
東京メトロ副都心線新宿三丁目駅」徒歩8分
都営新宿線新宿三丁目駅」徒歩8分
都営新宿線曙橋駅」徒歩9分
JR山手線新宿駅」徒歩15分
問い合わせ番号 2169-37F7
物件特徴 タワーマンション、ペット可、分譲賃貸
賃料 ---円 共益費/管理費 ---円
間取り 2LDK 専有面積 62.5m2
敷金 ---ヶ月 礼金 ---ヶ月
仲介手数料 ---ヶ月 その他費用 ---
フリーレント ---ヶ月 更新料 ---ヶ月
築年月 2015年9月 総階数 地上55階 地下2階
総戸数 1,093戸 建物構造 RC造
保険 要加入 保証会社 利用必須
方角 契約形態 普通賃貸借契約
ペット 可  入居可能時期

---

SOHO・事務所 不可  取引態様 媒介

※駐輪場・バイク置き場・駐車場の空き状況等詳細につきましてはお問い合わせください。

備考

建物設備

  • エレベーター
  • オートロック
  • 宅配ボックス
  • TVドアホン
  • トランクルーム
  • 駐車場
  • 大型駐車場
  • バイク置き場
  • 駐輪場
  • ラウンジ
  • コンシェルジュ
  • 敷地内ゴミ置き場
  • 各階ゴミ置き場
  • 内廊下
  • 24時間管理
  • 防犯カメラ
  • BS
  • CS
  • CATV
  • インターネット
  • 免震・制震

部屋設備

  • 独立洗面台
  • 追い焚き
  • ウォシュレット
  • 浴室乾燥機
  • システムキッチン
  • カウンターキッチン
  • ガスコンロ
  • 床暖房
  • エアコン
  • ウォークインクローゼット
  • ダブルロックキー
  • フローリング

※建物周辺情報はGoogleMapを使用しており、物件の表示位置が実際の場所と多少異なる場合があります。

富久クロスコンフォートタワー(Tomihisa Cross) の新着マッチングメールを登録する

会員登録するとマッチング機能がご利用いただけます。
ご希望の物件をマッチング登録すると、新着情報がいち早くメールで送られてきます。

1人がマッチング登録中!

【賃貸物件】募集中住戸一覧

6室表示

所在階 間取り 面積 賃料 管理費 敷金/礼金 仲介
手数料
フリー
レント
入居日 検討中 問合せ 詳細
9F 2LDK 60.35m2 32.0万円 1.5万円 1ヶ月/1ヶ月 1ヶ月 0ヶ月 即入居   お問い合わせ 詳細
17F 2LDK 63.42m2 41.5万円 2.0万円 2ヶ月/2ヶ月 1ヶ月 0ヶ月 7月中旬   お問い合わせ 詳細
20F 2SLDK 66.04m2 43.0万円 0万円 1ヶ月/1ヶ月 1ヶ月 0ヶ月 即入居   お問い合わせ 詳細
27F 2LDK 63.46m2 35.5万円 1.5万円 1ヶ月/1ヶ月 1ヶ月 0ヶ月 即入居   お問い合わせ 詳細
36F 2LDK 73.51m2 44.0万円 0万円 1ヶ月/2ヶ月 1ヶ月 0ヶ月 即入居   お問い合わせ 詳細
39F 2LDK 70.05m2 44.0万円 2.0万円 1ヶ月/1ヶ月 1ヶ月 0ヶ月 6月中旬   お問い合わせ 詳細
チェックした住戸をまとめてお問い合わせ

最近見た物件

簡単1分!会員登録はこちら