ウェルスクエア新高円寺 成約済み物件 (17733-301)

ウェルスクエア新高円寺

賃料 ---円 共益費/管理費 ---円
敷金 ---ヶ月 礼金 ---ヶ月
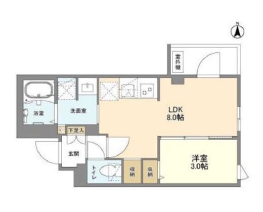
間取り 1LDK 専有面積 28.57m2
所在階 3階 入居日 ---
情報登録日 2026年1月24日 情報更新日 2026年4月26日
部屋1 LDK8帖 部屋2 洋室3帖
部屋3 部屋4
部屋5 部屋6
部屋7 部屋8
部屋9 部屋10

ウェルスクエア新高円寺 の新着マッチングメールを登録する

会員登録するとマッチング機能がご利用いただけます。
ご希望の物件をマッチング登録すると、新着情報がいち早くメールで送られてきます。

0人がマッチング登録中!

物件概要

物件名 ウェルスクエア新高円寺
所在地 東京都杉並区高円寺南3-21-13
交通 東京メトロ丸ノ内線新高円寺駅」徒歩5分
JR中央・総武線高円寺駅」徒歩9分
JR中央線(快速)高円寺駅」徒歩9分

問い合わせ番号 17733-301
物件特徴 低層マンション
賃料 ---円 共益費/管理費 ---円
間取り 1LDK 専有面積 28.57m2
敷金 ---ヶ月 礼金 ---ヶ月
仲介手数料 ---ヶ月 その他費用 ---
フリーレント ---ヶ月 更新料 ---ヶ月
築年月 2025年10月 総階数 地上5階 
総戸数 19戸 建物構造 RC造
保険 要加入 保証会社 利用必須
方角 契約形態 普通賃貸借契約
ペット 不可  入居可能時期

---

SOHO・事務所 不可  取引態様 媒介

※駐輪場・バイク置き場・駐車場の空き状況等詳細につきましてはお問い合わせください。

備考

建物設備

  • エレベーター
  • オートロック
  • 宅配ボックス
  • TVドアホン
  • 駐輪場
  • 敷地内ゴミ置き場
  • 防犯カメラ
  • BS
  • CS
  • CATV
  • インターネット

部屋設備

  • 独立洗面台
  • 追い焚き
  • ウォシュレット
  • 浴室乾燥機
  • システムキッチン
  • ガスコンロ
  • エアコン
  • フローリング
  • 角部屋

※建物周辺情報はGoogleMapを使用しており、物件の表示位置が実際の場所と多少異なる場合があります。

ウェルスクエア新高円寺 の新着マッチングメールを登録する

会員登録するとマッチング機能がご利用いただけます。
ご希望の物件をマッチング登録すると、新着情報がいち早くメールで送られてきます。

0人がマッチング登録中!

【賃貸物件】募集中住戸一覧

7室表示

所在階 間取り 面積 賃料 管理費 敷金/礼金 仲介
手数料
フリー
レント
入居日 検討中 問合せ 詳細
1F 2LDK 40.16m2 20.0万円 1.2万円 1ヶ月/0ヶ月 0ヶ月 0ヶ月 即入居   お問い合わせ 詳細
1F 2LDK 40.31m2 20.0万円 1.2万円 1ヶ月/0ヶ月 0ヶ月 0ヶ月 即入居   お問い合わせ 詳細
2F 2LDK 40.16m2 20.4万円 1.2万円 1ヶ月/0ヶ月 0ヶ月 0ヶ月 即入居   お問い合わせ 詳細
2F 2LDK 40.24m2 20.1万円 1.2万円 1ヶ月/0ヶ月 0ヶ月 0ヶ月 即入居   お問い合わせ 詳細
4F 1LDK 28.57m2 15.7万円 1.0万円 1ヶ月/0ヶ月 0ヶ月 0ヶ月 即入居   お問い合わせ 詳細
4F 2LDK 40.16m2 20.6万円 1.2万円 1ヶ月/0ヶ月 0ヶ月 0ヶ月 即入居   お問い合わせ 詳細
4F 2LDK 40.31m2 20.6万円 1.2万円 1ヶ月/0ヶ月 0ヶ月 0ヶ月 即入居   お問い合わせ 詳細
チェックした住戸をまとめてお問い合わせ

最近見た物件

簡単1分!会員登録はこちら