ジェノヴィア北池袋スカイガーデン 成約済み物件 (17359-406)

GENOVIA北池袋SKYGARDEN

賃料 ---円 共益費/管理費 ---円
敷金 ---ヶ月 礼金 ---ヶ月
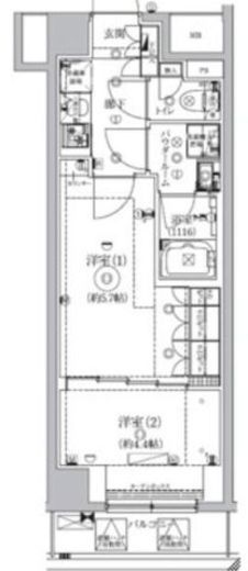
間取り 2K 専有面積 31.51m2
所在階 4階 入居日 ---
情報登録日 2025年12月5日 情報更新日 2026年2月13日
部屋1 洋室5.7帖 部屋2 洋室4.4帖
部屋3 部屋4
部屋5 部屋6
部屋7 部屋8
部屋9 部屋10

ジェノヴィア北池袋スカイガーデン の新着マッチングメールを登録する

会員登録するとマッチング機能がご利用いただけます。
ご希望の物件をマッチング登録すると、新着情報がいち早くメールで送られてきます。

0人がマッチング登録中!

物件概要

物件名 ジェノヴィア北池袋スカイガーデン
所在地 東京都北区滝野川7-25-14
交通 JR埼京線板橋駅」徒歩5分
都営三田線西巣鴨駅」徒歩9分
都営三田線新板橋駅」徒歩10分

問い合わせ番号 17359-406
物件特徴 低層マンション、ペット可、分譲賃貸
賃料 ---円 共益費/管理費 ---円
間取り 2K 専有面積 31.51m2
敷金 ---ヶ月 礼金 ---ヶ月
仲介手数料 ---ヶ月 その他費用 ---
フリーレント ---ヶ月 更新料 ---ヶ月
築年月 2025年10月 総階数 地上6階 
総戸数 40戸 建物構造 RC造
保険 要加入 保証会社 利用必須
方角 北西 契約形態 普通賃貸借契約
ペット 可 小型犬・大型犬・猫可 入居可能時期

---

SOHO・事務所 不可  取引態様 媒介

※駐輪場・バイク置き場・駐車場の空き状況等詳細につきましてはお問い合わせください。

備考

建物設備

  • エレベーター
  • オートロック
  • 宅配ボックス
  • TVドアホン
  • 駐車場
  • 大型駐車場
  • 駐輪場
  • 防犯カメラ
  • BS
  • CS
  • CATV
  • インターネット

部屋設備

  • 独立洗面台
  • ウォシュレット
  • 浴室乾燥機
  • システムキッチン
  • ガスコンロ
  • エアコン
  • ダブルロックキー
  • フローリング

※建物周辺情報はGoogleMapを使用しており、物件の表示位置が実際の場所と多少異なる場合があります。

ジェノヴィア北池袋スカイガーデン の新着マッチングメールを登録する

会員登録するとマッチング機能がご利用いただけます。
ご希望の物件をマッチング登録すると、新着情報がいち早くメールで送られてきます。

0人がマッチング登録中!

【賃貸物件】募集中住戸一覧

5室表示

所在階 間取り 面積 賃料 管理費 敷金/礼金 仲介
手数料
フリー
レント
入居日 検討中 問合せ 詳細
2F 1LDK 59.39m2 26.4万円 1.5万円 0ヶ月/0ヶ月 0ヶ月 0ヶ月 即入居   お問い合わせ 詳細
3F 1LDK 59.39m2 26.6万円 1.5万円 0ヶ月/0ヶ月 0ヶ月 0ヶ月 即入居   お問い合わせ 詳細
4F 1LDK 59.39m2 26.8万円 1.5万円 0ヶ月/0ヶ月 0ヶ月 0ヶ月 即入居   お問い合わせ 詳細
5F 1LDK 59.39m2 27.0万円 1.5万円 0ヶ月/0ヶ月 0ヶ月 0ヶ月 即入居   お問い合わせ 詳細
6F 1K 42.33m2 22.3万円 1.0万円 0ヶ月/0ヶ月 0ヶ月 0ヶ月 即入居   お問い合わせ 詳細
チェックした住戸をまとめてお問い合わせ

最近見た物件

簡単1分!会員登録はこちら