AIFLAT品川戸越パークサイド 成約済み物件 (17099-701)

アイフラット品川戸越パークサイド

賃料 ---円 共益費/管理費 ---円
敷金 ---ヶ月 礼金 ---ヶ月
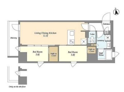
間取り 2LDK+WIC 専有面積 48.04m2
所在階 7階 入居日 ---
情報登録日 2025年12月13日 情報更新日 2026年2月23日
部屋1 LDK12.3帖 部屋2 洋室3.8帖
部屋3 洋室3.8帖 部屋4
部屋5 部屋6
部屋7 部屋8
部屋9 部屋10

AIFLAT品川戸越パークサイド の新着マッチングメールを登録する

会員登録するとマッチング機能がご利用いただけます。
ご希望の物件をマッチング登録すると、新着情報がいち早くメールで送られてきます。

0人がマッチング登録中!

物件概要

物件名 AIFLAT品川戸越パークサイド
所在地 東京都品川区戸越4-4-24
交通 東急大井町線戸越公園駅」徒歩5分
都営浅草線戸越駅」徒歩6分


問い合わせ番号 17099-701
物件特徴 ペット可
賃料 ---円 共益費/管理費 ---円
間取り 2LDK 専有面積 48.04m2
敷金 ---ヶ月 礼金 ---ヶ月
仲介手数料 ---ヶ月 その他費用 ---
フリーレント ---ヶ月 更新料 ---ヶ月
築年月 2025年10月 総階数 地上7階 
総戸数 44戸 建物構造 RC造
保険 要加入 保証会社 利用必須
方角 西 契約形態 普通賃貸借契約
ペット 可  入居可能時期

---

SOHO・事務所 不可  取引態様 媒介

※駐輪場・バイク置き場・駐車場の空き状況等詳細につきましてはお問い合わせください。

備考

建物設備

  • エレベーター
  • オートロック
  • 宅配ボックス
  • TVドアホン
  • 駐車場
  • バイク置き場
  • 駐輪場
  • 敷地内ゴミ置き場
  • 防犯カメラ
  • BS
  • CS
  • CATV
  • インターネット

部屋設備

  • 独立洗面台
  • 追い焚き
  • ウォシュレット
  • 浴室乾燥機
  • システムキッチン
  • カウンターキッチン
  • ガスコンロ
  • エアコン
  • ウォークインクローゼット
  • フローリング
  • 角部屋
  • 最上階

※建物周辺情報はGoogleMapを使用しており、物件の表示位置が実際の場所と多少異なる場合があります。

AIFLAT品川戸越パークサイド の新着マッチングメールを登録する

会員登録するとマッチング機能がご利用いただけます。
ご希望の物件をマッチング登録すると、新着情報がいち早くメールで送られてきます。

0人がマッチング登録中!

【賃貸物件】募集中住戸一覧

11室表示

所在階 間取り 面積 賃料 管理費 敷金/礼金 仲介
手数料
フリー
レント
入居日 検討中 問合せ 詳細
2F 2LDK 48.04m2 24.9万円 2.0万円 1ヶ月/0ヶ月 0ヶ月 1ヶ月 即入居   お問い合わせ 詳細
2F 2LDK 48.72m2 26.4万円 2.0万円 1ヶ月/0ヶ月 0ヶ月 1ヶ月 即入居   お問い合わせ 詳細
3F 2LDK 48.04m2 25.3万円 2.0万円 1ヶ月/0ヶ月 0ヶ月 1ヶ月 即入居   お問い合わせ 詳細
3F 2LDK 48.72m2 26.7万円 2.0万円 1ヶ月/0ヶ月 0ヶ月 1ヶ月 即入居   お問い合わせ 詳細
4F 2LDK 48.04m2 27.3万円 2.0万円 1ヶ月/0ヶ月 0ヶ月 0ヶ月 即入居   お問い合わせ 詳細
4F 2LDK 48.72m2 27.7万円 2.0万円 1ヶ月/0ヶ月 0ヶ月 0ヶ月 即入居   お問い合わせ 詳細
5F 2LDK 48.04m2 27.4万円 2.0万円 1ヶ月/0ヶ月 0ヶ月 0ヶ月 即入居   お問い合わせ 詳細
5F 1LDK 34.27m2 19.8万円 1.7万円 1ヶ月/0ヶ月 0ヶ月 0ヶ月 即入居   お問い合わせ 詳細
6F 1LDK 34.27m2 20.2万円 1.7万円 1ヶ月/0ヶ月 0ヶ月 0ヶ月 即入居   お問い合わせ 詳細
6F 2LDK 48.72m2 27.9万円 2.0万円 1ヶ月/0ヶ月 0ヶ月 0ヶ月 即入居   お問い合わせ 詳細
7F 1LDK 34.27m2 20.8万円 1.7万円 1ヶ月/0ヶ月 0ヶ月 0ヶ月 即入居   お問い合わせ 詳細

その他1件を表示

チェックした住戸をまとめてお問い合わせ

最近見た物件

簡単1分!会員登録はこちら