HARUMI FLAG SUN VILLAGE T棟 (晴海フラッグ サンヴィレッジ T棟) 成約済み物件 (16796-3003)

晴海フラッグ サンヴィレッジ T棟

賃料 ---円 共益費/管理費 ---円
敷金 ---ヶ月 礼金 ---ヶ月
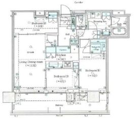
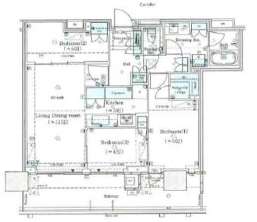
間取り 3LDK+WIC 専有面積 72.06m2
所在階 30階 入居日 ---
情報登録日 2025年11月13日 情報更新日 2025年12月25日
部屋1 LDK15.3帖 部屋2 洋室7帖
部屋3 洋室5帖 部屋4 洋室4.5帖
部屋5 部屋6
部屋7 部屋8
部屋9 部屋10

HARUMI FLAG SUN VILLAGE T棟 (晴海フラッグ サンヴィレッジ T棟) の新着マッチングメールを登録する

会員登録するとマッチング機能がご利用いただけます。
ご希望の物件をマッチング登録すると、新着情報がいち早くメールで送られてきます。

0人がマッチング登録中!

物件概要

物件名 HARUMI FLAG SUN VILLAGE T棟 (晴海フラッグ サンヴィレッジ T棟)
所在地 東京都中央区晴海5-5-47
交通 都営大江戸線勝どき駅」徒歩18分



問い合わせ番号 16796-3003
物件特徴 タワーマンション、分譲賃貸
賃料 ---円 共益費/管理費 ---円
間取り 3LDK 専有面積 72.06m2
敷金 ---ヶ月 礼金 ---ヶ月
仲介手数料 ---ヶ月 その他費用 ---
フリーレント ---ヶ月 更新料 ---ヶ月
築年月 2025年9月 総階数 地上50階 地下1階
総戸数 733戸 建物構造 RC造
保険 要加入 保証会社 利用必須
方角 西 契約形態 定期借家契約 5年間
ペット 不可  入居可能時期

---

SOHO・事務所 不可  取引態様 媒介

※駐輪場・バイク置き場・駐車場の空き状況等詳細につきましてはお問い合わせください。

備考

建物設備

  • エレベーター
  • オートロック
  • 宅配ボックス
  • TVドアホン
  • 駐車場
  • バイク置き場
  • 駐輪場
  • ラウンジ
  • ゲストルーム
  • 敷地内ゴミ置き場
  • 各階ゴミ置き場
  • 内廊下
  • 防犯カメラ
  • BS
  • CS
  • CATV
  • インターネット

部屋設備

  • 独立洗面台
  • 追い焚き
  • ウォシュレット
  • 浴室乾燥機
  • システムキッチン
  • カウンターキッチン
  • ディスポーザー
  • 食器洗浄機
  • 浄水器
  • ガスコンロ
  • 床暖房
  • エアコン
  • ウォークインクローゼット
  • ダブルロックキー
  • フローリング

※建物周辺情報はGoogleMapを使用しており、物件の表示位置が実際の場所と多少異なる場合があります。

HARUMI FLAG SUN VILLAGE T棟 (晴海フラッグ サンヴィレッジ T棟) の新着マッチングメールを登録する

会員登録するとマッチング機能がご利用いただけます。
ご希望の物件をマッチング登録すると、新着情報がいち早くメールで送られてきます。

0人がマッチング登録中!

【賃貸物件】募集中住戸一覧

13室表示(会員登録すると16室閲覧できます)

所在階 間取り 面積 賃料 管理費 敷金/礼金 仲介
手数料
フリー
レント
入居日 検討中 問合せ 詳細
5F 3LDK 79.35m2 35.0万円 2.0万円 1ヶ月/1ヶ月 1ヶ月 0ヶ月 即入居   お問い合わせ 詳細
8F 1LDK 49.38m2 24.5万円 2.0万円 2ヶ月/1ヶ月 1ヶ月 0ヶ月 即入居   お問い合わせ 詳細
11F 3LDK 71.51m2 35.0万円 3.0万円 1ヶ月/1ヶ月 1ヶ月 0ヶ月 即入居   お問い合わせ 詳細
12F 2LDK 61.32m2 37.5万円 2.0万円 1ヶ月/1ヶ月 1ヶ月 0ヶ月 即入居   お問い合わせ 詳細
14F 2LDK 54.8m2 30.0万円 0万円 2ヶ月/1ヶ月 1ヶ月 0ヶ月 即入居   お問い合わせ 詳細
22F 3LDK 79.75m2 42.2万円 2.0万円 1ヶ月/1ヶ月 0.5ヶ月 0ヶ月 即入居   お問い合わせ 詳細
26F 2LDK 54.8m2 35.0万円 3.0万円 1ヶ月/1ヶ月 1ヶ月 0ヶ月 6月下旬   お問い合わせ 詳細
27F 3LDK 74.11m2 39.5万円 3.5万円 1ヶ月/1ヶ月 1ヶ月 0ヶ月 即入居   お問い合わせ 詳細
27F 3LDK 77.85m2 43.5万円 2.5万円 1ヶ月/1ヶ月 1ヶ月 0ヶ月 即入居   お問い合わせ 詳細
29F 3LDK 71.51m2 33.0万円 2.0万円 1ヶ月/1ヶ月 1ヶ月 0ヶ月 即入居   お問い合わせ 詳細
44F 3LDK 79.53m2 42.0万円 3.0万円 1ヶ月/1ヶ月 1ヶ月 0ヶ月 即入居   お問い合わせ 詳細
48F 3LDK 103.01m2 62.0万円 3.0万円 2ヶ月/1ヶ月 1ヶ月 0ヶ月 即入居   お問い合わせ 詳細
50F 3LDK 96.87m2 94.0万円 6.0万円 1ヶ月/2ヶ月 1ヶ月 0ヶ月 即入居   お問い合わせ 詳細

その他3件を表示

チェックした住戸をまとめてお問い合わせ

最近見た物件

簡単1分!会員登録はこちら