WORVE横浜伊勢佐木町 成約済み物件 (16186-309)

WORVE横浜伊勢佐木町

賃料 ---円 共益費/管理費 ---円
敷金 ---ヶ月 礼金 ---ヶ月
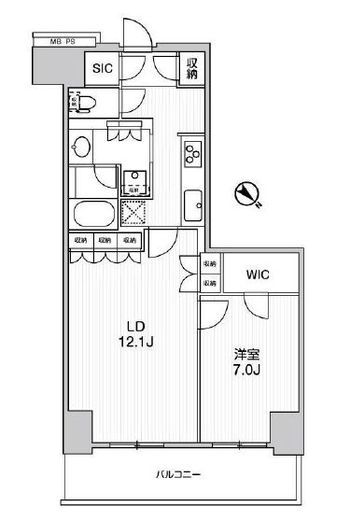
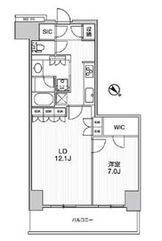
間取り 1LDK+WIC+SIC 専有面積 55.72m2
所在階 3階 入居日 ---
情報登録日 2026年1月20日 情報更新日 2026年1月20日
部屋1 LDK12.1帖 部屋2 洋室7帖
部屋3 部屋4
部屋5 部屋6
部屋7 部屋8
部屋9 部屋10

WORVE横浜伊勢佐木町 の新着マッチングメールを登録する

会員登録するとマッチング機能がご利用いただけます。
ご希望の物件をマッチング登録すると、新着情報がいち早くメールで送られてきます。

1人がマッチング登録中!

物件概要

物件名 WORVE横浜伊勢佐木町
所在地 神奈川県横浜市中区伊勢佐木町3-105
交通 ブルーライン伊勢佐木長者町駅」徒歩5分
京急本線日ノ出町駅」徒歩7分
JR根岸線関内駅」徒歩9分

問い合わせ番号 16186-309
物件特徴 なし
賃料 ---円 共益費/管理費 ---円
間取り 1LDK 専有面積 55.72m2
敷金 ---ヶ月 礼金 ---ヶ月
仲介手数料 ---ヶ月 その他費用 ---
フリーレント ---ヶ月 更新料 ---ヶ月
築年月 2025年3月 総階数 地上15階 
総戸数 222戸 建物構造 RC造
保険 要加入 保証会社 利用必須
方角 南西 契約形態 定期借家契約 2年間
ペット 不可  入居可能時期

---

SOHO・事務所 不可  取引態様 媒介

※駐輪場・バイク置き場・駐車場の空き状況等詳細につきましてはお問い合わせください。

備考

建物設備

  • エレベーター
  • オートロック
  • 宅配ボックス
  • TVドアホン
  • 駐車場
  • バイク置き場
  • 駐輪場
  • ラウンジ
  • フィットネスジム
  • 敷地内ゴミ置き場
  • 防犯カメラ
  • BS
  • CS
  • CATV
  • インターネット

部屋設備

  • 独立洗面台
  • ウォシュレット
  • 浴室乾燥機
  • システムキッチン
  • ガスコンロ
  • エアコン
  • シューズインクローゼット
  • ウォークインクローゼット
  • ダブルロックキー
  • フローリング
  • 南向き

※建物周辺情報はGoogleMapを使用しており、物件の表示位置が実際の場所と多少異なる場合があります。

WORVE横浜伊勢佐木町 の新着マッチングメールを登録する

会員登録するとマッチング機能がご利用いただけます。
ご希望の物件をマッチング登録すると、新着情報がいち早くメールで送られてきます。

1人がマッチング登録中!

【賃貸物件】募集中住戸一覧

16室表示

所在階 間取り 面積 賃料 管理費 敷金/礼金 仲介
手数料
フリー
レント
入居日 検討中 問合せ 詳細
3F 1LDK 37.74m2 14.7万円 1.5万円 1ヶ月/0ヶ月 0ヶ月 0ヶ月 即入居   お問い合わせ 詳細
3F 1LDK 36.63m2 14.6万円 1.5万円 1ヶ月/0ヶ月 0ヶ月 0ヶ月 即入居   お問い合わせ 詳細
3F 2K 35.64m2 13.7万円 1.5万円 1ヶ月/0ヶ月 0ヶ月 0ヶ月 即入居   お問い合わせ 詳細
3F 2K 35.2m2 13.7万円 1.5万円 1ヶ月/0ヶ月 0ヶ月 0ヶ月 即入居   お問い合わせ 詳細
4F 3LDK 67.71m2 24.2万円 2.0万円 1ヶ月/0ヶ月 0ヶ月 0ヶ月 即入居   お問い合わせ 詳細
8F 3LDK 67.71m2 24.9万円 2.0万円 1ヶ月/0ヶ月 0ヶ月 0ヶ月 即入居   お問い合わせ 詳細
8F 2LDK 49.55m2 19.8万円 1.5万円 1ヶ月/0ヶ月 0ヶ月 0ヶ月 即入居   お問い合わせ 詳細
8F 1LDK 42m2 16.5万円 1.5万円 1ヶ月/0ヶ月 0ヶ月 0ヶ月 即入居   お問い合わせ 詳細
8F 1LDK 42m2 16.5万円 1.5万円 1ヶ月/0ヶ月 0ヶ月 0ヶ月 即入居   お問い合わせ 詳細
8F 2K 35.2m2 14.7万円 1.5万円 1ヶ月/0ヶ月 0ヶ月 0ヶ月 即入居   お問い合わせ 詳細
9F 3LDK 67.71m2 25.0万円 2.0万円 1ヶ月/0ヶ月 0ヶ月 0ヶ月 即入居   お問い合わせ 詳細
9F 1LDK 36.63m2 15.5万円 1.5万円 1ヶ月/0ヶ月 0ヶ月 1ヶ月 即入居   お問い合わせ 詳細
9F 2LDK 49.55m2 19.9万円 1.5万円 1ヶ月/0ヶ月 0ヶ月 0ヶ月 即入居   お問い合わせ 詳細
9F 2K 35.2m2 14.8万円 1.5万円 1ヶ月/0ヶ月 0ヶ月 0ヶ月 即入居   お問い合わせ 詳細
10F 2LDK 49.55m2 19.9万円 1.5万円 1ヶ月/0ヶ月 0ヶ月 0ヶ月 即入居   お問い合わせ 詳細
10F 1LDK 42m2 16.6万円 1.5万円 1ヶ月/0ヶ月 0ヶ月 1ヶ月 即入居   お問い合わせ 詳細

その他6件を表示

チェックした住戸をまとめてお問い合わせ
簡単1分!会員登録はこちら