T's garden横浜反町 成約済み物件 (15174-306)
ティーズガーデン横浜反町
| 賃料 | ---円 | 共益費/管理費 | ---円 |
|---|---|---|---|
| 敷金 | ---ヶ月 | 礼金 | ---ヶ月 |
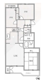
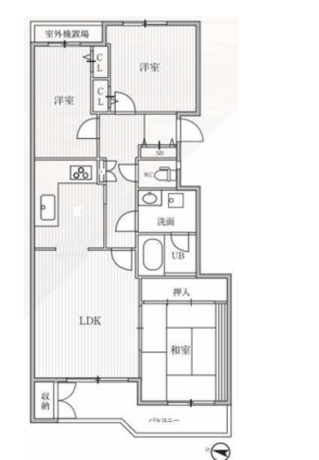
| 間取り | 3LDK | 専有面積 | 77.1m2 |
| 所在階 | 1階 | 入居日 | --- |
| 情報登録日 | 2025年10月26日 | 情報更新日 | 2025年10月26日 |
T's garden横浜反町 の新着マッチングメールを登録する
会員登録するとマッチング機能がご利用いただけます。
ご希望の物件をマッチング登録すると、新着情報がいち早くメールで送られてきます。
0人がマッチング登録中!
物件概要
| 物件名 | T's garden横浜反町 | ||
|---|---|---|---|
| 所在地 | 神奈川県横浜市神奈川区中丸1-8 | ||
| 交通 | 東急東横線「反町駅」徒歩13分 ブルーライン「三ツ沢下町駅」徒歩13分 東急東横線「東白楽駅」徒歩13分 |
||
| 問い合わせ番号 | 15174-306 | ||
| 物件特徴 | 低層マンション、ペット可、分譲賃貸 | ||
| 賃料 | ---円 | 共益費/管理費 | ---円 |
| 間取り | 3LDK | 専有面積 | 77.1m2 |
| 敷金 | ---ヶ月 | 礼金 | ---ヶ月 |
| 仲介手数料 | ---ヶ月 | その他費用 | --- |
| フリーレント | ---ヶ月 | 更新料 | ---ヶ月 |
| 築年月 | 1992年2月 | 総階数 | 地上5階 |
| 総戸数 | 45戸 | 建物構造 | RC造 |
| 保険 | 要加入 | 保証会社 | 利用必須 |
| 方角 | 西 | 契約形態 | 普通賃貸借契約 |
| ペット | 可 | 入居可能時期 | --- |
| SOHO・事務所 | 不可 | 取引態様 | 媒介 |
※駐輪場・バイク置き場・駐車場の空き状況等詳細につきましてはお問い合わせください。
備考
建物設備
- オートロック
- 宅配ボックス
- TVドアホン
- 駐車場
- バイク置き場
- 駐輪場
- 敷地内ゴミ置き場
- 防犯カメラ
- BS
- CS
- CATV
- インターネット
部屋設備
- 独立洗面台
- 追い焚き
- 浴室乾燥機
- システムキッチン
- ガスコンロ
- エアコン
- ダブルロックキー
- フローリング
- 角部屋
※建物周辺情報はGoogleMapを使用しており、物件の表示位置が実際の場所と多少異なる場合があります。
- ※掲載情報が現況と異なる場合は、現況を優先させていただきます。
- ※キャンペーン情報は予告なく変更・終了する場合がございます。詳細はお問い合わせください。
- ※部屋により敷金・礼金・キャンペーンの内容が異なる場合がございますので、詳しい情報は各部屋ページにてご確認ください。
- ※分譲賃貸は部屋によって所有者が異なる為、内装や設備が変更されている場合がございます。
- ※ペットの飼育やSOHO利用に関しては、建物自体が許可を出していても、所有者の意向により禁止とされている場合もございますのでご注意ください。
T's garden横浜反町 の新着マッチングメールを登録する
会員登録するとマッチング機能がご利用いただけます。
ご希望の物件をマッチング登録すると、新着情報がいち早くメールで送られてきます。
0人がマッチング登録中!
【賃貸物件】募集中住戸一覧
4室表示