南青山テラス常盤松フォレスト 成約済み物件 (1430-2F2)
南青山テラス 常盤松フォレスト
| 賃料 | ---円 | 共益費/管理費 | ---円 |
|---|---|---|---|
| 敷金 | ---ヶ月 | 礼金 | ---ヶ月 |
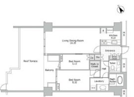
| 間取り | 2LDK+WIC | 専有面積 | 78.47m2 |
| 所在階 | 2階 | 入居日 | --- |
| 情報登録日 | 2025年7月29日 | 情報更新日 | 2025年8月8日 |
南青山テラス常盤松フォレスト の新着マッチングメールを登録する
会員登録するとマッチング機能がご利用いただけます。
ご希望の物件をマッチング登録すると、新着情報がいち早くメールで送られてきます。
1人がマッチング登録中!
物件概要
| 物件名 | 南青山テラス常盤松フォレスト | ||
|---|---|---|---|
| 所在地 | 東京都港区南青山7-1-27 | ||
| 交通 | 東京メトロ半蔵門線「表参道駅」徒歩10分 東京メトロ千代田線「表参道駅」徒歩10分 東京メトロ日比谷線「広尾駅」徒歩15分 JR山手線「渋谷駅」徒歩16分 東京メトロ銀座線「渋谷駅」徒歩16分 |
||
| 問い合わせ番号 | 1430-2F2 | ||
| 物件特徴 | ペット可、分譲賃貸 | ||
| 賃料 | ---円 | 共益費/管理費 | ---円 |
| 間取り | 2LDK | 専有面積 | 78.47m2 |
| 敷金 | ---ヶ月 | 礼金 | ---ヶ月 |
| 仲介手数料 | ---ヶ月 | その他費用 | --- |
| フリーレント | ---ヶ月 | 更新料 | ---ヶ月 |
| 築年月 | 2006年2月 | 総階数 | 地上13階 地下1階 |
| 総戸数 | 196戸 | 建物構造 | RC造 |
| 保険 | 要加入 | 保証会社 | 利用必須 |
| 方角 | 北西 | 契約形態 | 定期借家契約 2年間 |
| ペット | 可 小型犬1匹(飼育時敷金1ヶ月積み増し) | 入居可能時期 | --- |
| SOHO・事務所 | 不可 | 取引態様 | 媒介 |
※駐輪場・バイク置き場・駐車場の空き状況等詳細につきましてはお問い合わせください。
備考
建物設備
- エレベーター
- オートロック
- 宅配ボックス
- TVドアホン
- トランクルーム
- 駐車場
- 大型駐車場
- バイク置き場
- 駐輪場
- ラウンジ
- コンシェルジュ
- 敷地内ゴミ置き場
- 内廊下
- 防犯カメラ
- BS
- CS
- CATV
- インターネット
- 閑静な住宅街
- 楽器可
部屋設備
- 独立洗面台
- 追い焚き
- ウォシュレット
- 浴室乾燥機
- システムキッチン
- ディスポーザー
- 食器洗浄機
- ガスコンロ
- 床暖房
- エアコン
- ウォークインクローゼット
- ダブルロックキー
- フローリング
- ルーフバルコニー
※建物周辺情報はGoogleMapを使用しており、物件の表示位置が実際の場所と多少異なる場合があります。
- ※掲載情報が現況と異なる場合は、現況を優先させていただきます。
- ※キャンペーン情報は予告なく変更・終了する場合がございます。詳細はお問い合わせください。
- ※部屋により敷金・礼金・キャンペーンの内容が異なる場合がございますので、詳しい情報は各部屋ページにてご確認ください。
- ※分譲賃貸は部屋によって所有者が異なる為、内装や設備が変更されている場合がございます。
- ※ペットの飼育やSOHO利用に関しては、建物自体が許可を出していても、所有者の意向により禁止とされている場合もございますのでご注意ください。
南青山テラス常盤松フォレスト の新着マッチングメールを登録する
会員登録するとマッチング機能がご利用いただけます。
ご希望の物件をマッチング登録すると、新着情報がいち早くメールで送られてきます。
1人がマッチング登録中!
【賃貸物件】募集中住戸一覧
0室表示