ザ・パークハビオ新中野 成約済み物件 (14119-204)

The Parkhabio新中野

賃料 ---円 共益費/管理費 ---円
敷金 ---ヶ月 礼金 ---ヶ月
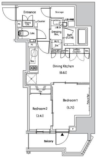
間取り 2DK 専有面積 40.85m2
所在階 2階 入居日 ---
情報登録日 2024年12月27日 情報更新日 2025年2月24日
部屋1 DK6.6帖 部屋2 洋室5.7帖
部屋3 洋室2.4帖 部屋4
部屋5 部屋6
部屋7 部屋8
部屋9 部屋10

ザ・パークハビオ新中野 の新着マッチングメールを登録する

会員登録するとマッチング機能がご利用いただけます。
ご希望の物件をマッチング登録すると、新着情報がいち早くメールで送られてきます。

0人がマッチング登録中!

物件概要

物件名 ザ・パークハビオ新中野
所在地 東京都中野区本町4-30-24
交通 東京メトロ丸ノ内線新中野駅」徒歩2分
JR中央・総武線中野駅」徒歩15分
東京メトロ東西線中野駅」徒歩15分

問い合わせ番号 14119-204
物件特徴 SOHO・事務所可、ペット可
賃料 ---円 共益費/管理費 ---円
間取り 2DK 専有面積 40.85m2
敷金 ---ヶ月 礼金 ---ヶ月
仲介手数料 ---ヶ月 その他費用 ---
フリーレント ---ヶ月 更新料 ---ヶ月
築年月 2024年2月 総階数 地上15階 
総戸数 93戸 建物構造
保険 要加入 保証会社 利用必須
方角 契約形態 普通賃貸借契約
ペット 可  入居可能時期

---

SOHO・事務所 可  取引態様 媒介

※駐輪場・バイク置き場・駐車場の空き状況等詳細につきましてはお問い合わせください。

備考

建物設備

  • エレベーター
  • オートロック
  • 宅配ボックス
  • TVドアホン
  • 駐車場
  • 大型駐車場
  • バイク置き場
  • 駐輪場
  • ラウンジ
  • 敷地内ゴミ置き場
  • 防犯カメラ
  • BS
  • CS
  • CATV
  • インターネット

部屋設備

  • 独立洗面台
  • ウォシュレット
  • 浴室乾燥機
  • システムキッチン
  • ガスコンロ
  • エアコン
  • ダブルロックキー
  • フローリング
  • 南向き

※建物周辺情報はGoogleMapを使用しており、物件の表示位置が実際の場所と多少異なる場合があります。

ザ・パークハビオ新中野 の新着マッチングメールを登録する

会員登録するとマッチング機能がご利用いただけます。
ご希望の物件をマッチング登録すると、新着情報がいち早くメールで送られてきます。

0人がマッチング登録中!

【賃貸物件】募集中住戸一覧

8室表示

所在階 間取り 面積 賃料 管理費 敷金/礼金 仲介
手数料
フリー
レント
入居日 検討中 問合せ 詳細
3F 1DK 35.84m2 17.0万円 1.5万円 1ヶ月/1ヶ月 0ヶ月 0ヶ月 即入居   お問い合わせ 詳細
6F 2DK 42.5m2 20.9万円 2.0万円 1ヶ月/1ヶ月 0ヶ月 0ヶ月 即入居   お問い合わせ 詳細
6F 1R 26.35m2 13.9万円 1.5万円 1ヶ月/1ヶ月 0ヶ月 0ヶ月 6月30日   お問い合わせ 詳細
NEW
11F
2DK 42.5m2 21.6万円 2.0万円 1ヶ月/1ヶ月 0ヶ月 0ヶ月 7月下旬   お問い合わせ 詳細
NEW
12F
1LDK 40.93m2 24.0万円 1.5万円 1ヶ月/1ヶ月 0ヶ月 0ヶ月 7月下旬   お問い合わせ 詳細
13F 2DK 42.5m2 21.9万円 2.0万円 1ヶ月/1ヶ月 0ヶ月 1ヶ月 7月20日   お問い合わせ 詳細
15F 2LDK 52.77m2 31.4万円 2.0万円 1ヶ月/1ヶ月 0ヶ月 0ヶ月 即入居   お問い合わせ 詳細
15F 1DK 35.84m2 18.4万円 1.5万円 1ヶ月/1ヶ月 0ヶ月 0ヶ月 即入居   お問い合わせ 詳細
チェックした住戸をまとめてお問い合わせ

最近見た物件

簡単1分!会員登録はこちら