HARUMI FLAG PARK VILLAGE (晴海フラッグ パークヴィレッジ) 成約済み物件 (13666-T705)

晴海フラッグ パークヴィレッジ

賃料 ---円 共益費/管理費 ---円
敷金 ---ヶ月 礼金 ---ヶ月
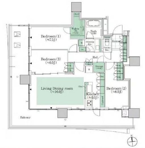
間取り 3LDK+WIC 専有面積 92.91m2
所在階 7階 入居日 ---
情報登録日 2025年10月12日 情報更新日 2025年11月9日
部屋1 LDK20帖 部屋2 洋室7.5帖
部屋3 洋室6.5帖 部屋4 洋室6帖
部屋5 部屋6
部屋7 部屋8
部屋9 部屋10

HARUMI FLAG PARK VILLAGE (晴海フラッグ パークヴィレッジ) の新着マッチングメールを登録する

会員登録するとマッチング機能がご利用いただけます。
ご希望の物件をマッチング登録すると、新着情報がいち早くメールで送られてきます。

3人がマッチング登録中!

物件概要

物件名 HARUMI FLAG PARK VILLAGE (晴海フラッグ パークヴィレッジ)
所在地 東京都中央区晴海5-504
交通 都営大江戸線勝どき駅」徒歩16分



問い合わせ番号 13666-T705
物件特徴 分譲賃貸
賃料 ---円 共益費/管理費 ---円
間取り 3LDK 専有面積 92.91m2
敷金 ---ヶ月 礼金 ---ヶ月
仲介手数料 ---ヶ月 その他費用 ---
フリーレント ---ヶ月 更新料 ---ヶ月
築年月 2024年10月 総階数 地上16階 地下1階
総戸数 1,637戸 建物構造 RC造
保険 要加入 保証会社 利用必須
方角 南西 契約形態 定期借家契約 2年間
ペット 不可  入居可能時期

---

SOHO・事務所 不可  取引態様 媒介

※駐輪場・バイク置き場・駐車場の空き状況等詳細につきましてはお問い合わせください。

備考

建物設備

  • エレベーター
  • オートロック
  • 宅配ボックス
  • TVドアホン
  • 駐車場
  • 大型駐車場
  • バイク置き場
  • 駐輪場
  • ラウンジ
  • キッズルーム
  • コンシェルジュ
  • フィットネスジム
  • ゲストルーム
  • パーティールーム
  • カーシェアリング
  • シアタールーム
  • 敷地内ゴミ置き場
  • 防犯カメラ
  • BS
  • CS
  • インターネット

部屋設備

  • 独立洗面台
  • 追い焚き
  • ウォシュレット
  • 浴室乾燥機
  • システムキッチン
  • カウンターキッチン
  • ディスポーザー
  • 食器洗浄機
  • 浄水器
  • ガスコンロ
  • 床暖房
  • エアコン
  • ウォークインクローゼット
  • ダブルロックキー
  • フローリング
  • 角部屋
  • 南向き

※建物周辺情報はGoogleMapを使用しており、物件の表示位置が実際の場所と多少異なる場合があります。

HARUMI FLAG PARK VILLAGE (晴海フラッグ パークヴィレッジ) の新着マッチングメールを登録する

会員登録するとマッチング機能がご利用いただけます。
ご希望の物件をマッチング登録すると、新着情報がいち早くメールで送られてきます。

3人がマッチング登録中!

【賃貸物件】募集中住戸一覧

9室表示(会員登録すると10室閲覧できます)

所在階 間取り 面積 賃料 管理費 敷金/礼金 仲介
手数料
フリー
レント
入居日 検討中 問合せ 詳細
3F 2LDK 85.15m2 40.0万円 0万円 1ヶ月/1ヶ月 1ヶ月 0ヶ月 即入居   お問い合わせ 詳細
4F 3LDK 84.21m2 39.9万円 2.0万円 1ヶ月/1ヶ月 1ヶ月 0ヶ月 6月中旬   お問い合わせ 詳細
4F 3LDK 81.76m2 40.0万円 2.0万円 1ヶ月/1ヶ月 1ヶ月 0ヶ月 即入居   お問い合わせ 詳細
5F 3LDK 77.59m2 40.0万円 0万円 1ヶ月/1ヶ月 0ヶ月 0ヶ月 即入居   お問い合わせ 詳細
12F 3LDK 83.44m2 35.0万円 3.0万円 1ヶ月/1ヶ月 1ヶ月 0ヶ月 相談   お問い合わせ 詳細
14F 2LDK 78.07m2 57.0万円 3.0万円 1ヶ月/1ヶ月 1ヶ月 0ヶ月 即入居   お問い合わせ 詳細
17F 2LDK 66.59m2 30.0万円 2.0万円 1ヶ月/1ヶ月 1ヶ月 0ヶ月 即入居   お問い合わせ 詳細
18F 3LDK 75.46m2 52.8万円 5.0万円 1ヶ月/1ヶ月 0ヶ月 0ヶ月 即入居   お問い合わせ 詳細
18F 2LDK 72.46m2 41.0万円 4.0万円 0ヶ月/0ヶ月 1ヶ月 0ヶ月 7月下旬   お問い合わせ 詳細
チェックした住戸をまとめてお問い合わせ

最近見た物件

簡単1分!会員登録はこちら