麻布台ヒルズレジデンスB 成約済み物件 (13503-9F1)

麻布台ヒルズレジデンスB

賃料 ---円 共益費/管理費 ---円
敷金 ---ヶ月 礼金 ---ヶ月
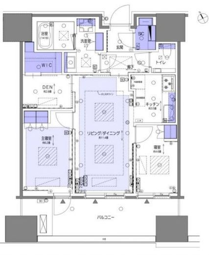
間取り 2SLDK+SIC 専有面積 70.28m2
所在階 9階 入居日 ---
情報登録日 2025年12月6日 情報更新日 2025年12月25日
部屋1 LDK14.9帖 部屋2 洋室6.2帖
部屋3 洋室4.6帖 部屋4 DEN2.8帖
部屋5 部屋6
部屋7 部屋8
部屋9 部屋10

麻布台ヒルズレジデンスB の新着マッチングメールを登録する

会員登録するとマッチング機能がご利用いただけます。
ご希望の物件をマッチング登録すると、新着情報がいち早くメールで送られてきます。

0人がマッチング登録中!

物件概要

物件名 麻布台ヒルズレジデンスB
所在地 東京都港区麻布台1-1-1
交通 東京メトロ南北線六本木一丁目駅」徒歩3分
東京メトロ日比谷線神谷町駅」徒歩5分


問い合わせ番号 13503-9F1
物件特徴 タワーマンション、分譲賃貸
賃料 ---円 共益費/管理費 ---円
間取り 2SLDK 専有面積 70.28m2
敷金 ---ヶ月 礼金 ---ヶ月
仲介手数料 ---ヶ月 その他費用 ---
フリーレント ---ヶ月 更新料 ---ヶ月
築年月 2025年8月 総階数 地上64階 地下5階
総戸数 970戸 建物構造 RC造
保険 要加入 保証会社 利用必須
方角 南西 契約形態 普通賃貸借契約
ペット 不可  入居可能時期

---

SOHO・事務所 不可  取引態様 媒介

※駐輪場・バイク置き場・駐車場の空き状況等詳細につきましてはお問い合わせください。

備考

建物設備

  • エレベーター
  • オートロック
  • 宅配ボックス
  • TVドアホン
  • トランクルーム
  • 駐車場
  • バイク置き場
  • 駐輪場
  • ラウンジ
  • キッズルーム
  • コンシェルジュ
  • フィットネスジム
  • ゲストルーム
  • パーティールーム
  • シアタールーム
  • 敷地内ゴミ置き場
  • 防犯カメラ
  • BS
  • CS
  • CATV
  • インターネット
  • バリアフリー

部屋設備

  • 独立洗面台
  • 追い焚き
  • ウォシュレット
  • 浴室乾燥機
  • システムキッチン
  • ディスポーザー
  • 食器洗浄機
  • ガスコンロ
  • 床暖房
  • エアコン
  • シューズインクローゼット
  • ダブルロックキー
  • フローリング
  • 南向き

※建物周辺情報はGoogleMapを使用しており、物件の表示位置が実際の場所と多少異なる場合があります。

麻布台ヒルズレジデンスB の新着マッチングメールを登録する

会員登録するとマッチング機能がご利用いただけます。
ご希望の物件をマッチング登録すると、新着情報がいち早くメールで送られてきます。

0人がマッチング登録中!

【賃貸物件】募集中住戸一覧

17室表示

所在階 間取り 面積 賃料 管理費 敷金/礼金 仲介
手数料
フリー
レント
入居日 検討中 問合せ 詳細
6F 1LDK 60.9m2 70.0万円 0万円 1ヶ月/1ヶ月 0.5ヶ月 0ヶ月 即入居   お問い合わせ 詳細
6F 1R 44.22m2 49.0万円 0万円 2ヶ月/0ヶ月 0ヶ月 0ヶ月 即入居   お問い合わせ 詳細
8F 1R 43.58m2 49.0万円 0万円 1ヶ月/1ヶ月 1ヶ月 0ヶ月 即入居   お問い合わせ 詳細
8F 2LDK 95.45m2 90.0万円 0万円 4ヶ月/0ヶ月 1ヶ月 0ヶ月 相談   お問い合わせ 詳細
9F 1R 43.58m2 52.0万円 0万円 2ヶ月/1ヶ月 1ヶ月 0ヶ月 即入居   お問い合わせ 詳細
11F 1LDK 60.9m2 55.0万円 0万円 4ヶ月/0ヶ月 1ヶ月 0ヶ月 相談   お問い合わせ 詳細
12F 1R 44.22m2 48.0万円 0万円 2ヶ月/0ヶ月 1ヶ月 0ヶ月 即入居   お問い合わせ 詳細
19F 2LDK 105.78m2 160.0万円 0万円 1ヶ月/1ヶ月 1ヶ月 0ヶ月 即入居   お問い合わせ 詳細
25F 2LDK 101.68m2 120.0万円 0万円 4ヶ月/0ヶ月 1ヶ月 0ヶ月 相談   お問い合わせ 詳細
25F 3LDK 127.02m2 145.0万円 0万円 4ヶ月/0ヶ月 1ヶ月 0ヶ月 即入居   お問い合わせ 詳細
27F 3LDK 127.02m2 146.0万円 0万円 4ヶ月/0ヶ月 1ヶ月 0ヶ月 相談   お問い合わせ 詳細
41F 2LDK 81.94m2 107.0万円 0万円 4ヶ月/0ヶ月 1ヶ月 0ヶ月 相談   お問い合わせ 詳細
44F 1LDK 59.76m2 78.0万円 0万円 4ヶ月/0ヶ月 1ヶ月 0ヶ月 相談   お問い合わせ 詳細
45F 2LDK 81.94m2 107.0万円 0万円 4ヶ月/0ヶ月 1ヶ月 0ヶ月 相談   お問い合わせ 詳細
55F 3LDK 151.74m2 217.0万円 0万円 4ヶ月/0ヶ月 1ヶ月 0ヶ月 相談   お問い合わせ 詳細
55F 3LDK 166.97m2 241.0万円 0万円 4ヶ月/0ヶ月 1ヶ月 0ヶ月 相談   お問い合わせ 詳細
55F 3LDK 148.82m2 215.0万円 0万円 4ヶ月/1ヶ月 1ヶ月 0ヶ月 即入居   お問い合わせ 詳細

その他7件を表示

チェックした住戸をまとめてお問い合わせ

最近見た物件

簡単1分!会員登録はこちら