グランハイツ代々木 成約済み物件 (1212-409)

グランハイツ代々木

賃料 ---円 共益費/管理費 ---円
敷金 ---ヶ月 礼金 ---ヶ月
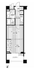
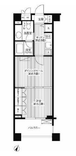
間取り 1DK 専有面積 34.02m2
所在階 4階 入居日 ---
情報登録日 2025年11月30日 情報更新日 2026年1月24日
部屋1 DK9.4帖 部屋2 洋室5帖
部屋3 部屋4
部屋5 部屋6
部屋7 部屋8
部屋9 部屋10

グランハイツ代々木 の新着マッチングメールを登録する

会員登録するとマッチング機能がご利用いただけます。
ご希望の物件をマッチング登録すると、新着情報がいち早くメールで送られてきます。

0人がマッチング登録中!

物件概要

物件名 グランハイツ代々木
所在地 東京都渋谷区代々木3-37-3
交通 小田急線参宮橋駅」徒歩5分
京王線初台駅」徒歩9分
JR山手線代々木駅」徒歩12分
JR中央・総武線代々木駅」徒歩12分
都営大江戸線代々木駅」徒歩12分
問い合わせ番号 1212-409
物件特徴 なし
賃料 ---円 共益費/管理費 ---円
間取り 1DK 専有面積 34.02m2
敷金 ---ヶ月 礼金 ---ヶ月
仲介手数料 ---ヶ月 その他費用 ---
フリーレント ---ヶ月 更新料 ---ヶ月
築年月 2006年1月 総階数 地上15階 
総戸数 117戸 建物構造 RC造
保険 要加入 保証会社 利用必須
方角 南東 契約形態 普通賃貸借契約
ペット 不可  入居可能時期

---

SOHO・事務所 不可  取引態様 媒介

※駐輪場・バイク置き場・駐車場の空き状況等詳細につきましてはお問い合わせください。

備考

建物設備

  • エレベーター
  • オートロック
  • 宅配ボックス
  • TVドアホン
  • トランクルーム
  • 駐車場
  • バイク置き場
  • 駐輪場
  • 敷地内ゴミ置き場
  • 内廊下
  • 防犯カメラ
  • BS
  • CS
  • CATV
  • インターネット

部屋設備

  • 独立洗面台
  • 追い焚き
  • ウォシュレット
  • 浴室乾燥機
  • システムキッチン
  • ガスコンロ
  • エアコン
  • ダブルロックキー
  • フローリング
  • 南向き

※建物周辺情報はGoogleMapを使用しており、物件の表示位置が実際の場所と多少異なる場合があります。

グランハイツ代々木 の新着マッチングメールを登録する

会員登録するとマッチング機能がご利用いただけます。
ご希望の物件をマッチング登録すると、新着情報がいち早くメールで送られてきます。

0人がマッチング登録中!

【賃貸物件】募集中住戸一覧

6室表示

所在階 間取り 面積 賃料 管理費 敷金/礼金 仲介
手数料
フリー
レント
入居日 検討中 問合せ 詳細
NEW
7F
1K 31.36m2 15.8万円 0.6万円 1ヶ月/1ヶ月 0.5ヶ月 0ヶ月 6月中旬   お問い合わせ 詳細
8F 1K 34.38m2 16.9万円 0.6万円 1ヶ月/1ヶ月 0.5ヶ月 0ヶ月 相談   お問い合わせ 詳細
NEW
8F
1K 31.36m2 15.9万円 0.6万円 1ヶ月/1ヶ月 0.5ヶ月 0ヶ月 即入居   お問い合わせ 詳細
9F 1K 31.36m2 15.9万円 0.6万円 1ヶ月/1ヶ月 0.5ヶ月 0ヶ月 即入居   お問い合わせ 詳細
10F 1K 32.73m2 16.3万円 0.6万円 1ヶ月/1ヶ月 0.5ヶ月 0ヶ月 即入居   お問い合わせ 詳細
12F 1LDK 47.45m2 25.0万円 0.8万円 1ヶ月/1ヶ月 0.5ヶ月 0ヶ月 即入居   お問い合わせ 詳細
チェックした住戸をまとめてお問い合わせ

最近見た物件

簡単1分!会員登録はこちら