ハーモニーレジデンス武蔵小杉フォレストスクエア 202

ハーモニーレジデンス武蔵小杉フォレストスクエア

賃料 126,000円 共益費/管理費 15,000円
敷金 1ヶ月 礼金 1ヶ月
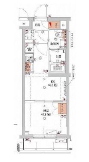
間取り 1DK 専有面積 25.42m2
所在階 2階 入居日 即入居
情報登録日 2026年2月28日 情報更新日 2026年2月28日
部屋1 DK6帖 部屋2 洋室4.2帖
部屋3 部屋4
部屋5 部屋6
部屋7 部屋8
部屋9 部屋10

ハーモニーレジデンス武蔵小杉フォレストスクエア 202 のお問い合わせはこちら

ハーモニーレジデンス武蔵小杉フォレストスクエア の新着マッチングメールを登録する

会員登録するとマッチング機能がご利用いただけます。
ご希望の物件をマッチング登録すると、新着情報がいち早くメールで送られてきます。

0人がマッチング登録中!

物件概要

物件名 ハーモニーレジデンス武蔵小杉フォレストスクエア
所在地 神奈川県川崎市中原区小杉町2-207-3
交通 東急目黒線新丸子駅」徒歩9分
東急東横線武蔵小杉駅」徒歩10分
JR南武線武蔵小杉駅」徒歩12分

問い合わせ番号 11829-202
物件特徴 低層マンション、ペット可
賃料 126,000円 共益費/管理費 15,000円
間取り 1DK 専有面積 25.42m2
敷金 1ヶ月 礼金 1ヶ月
仲介手数料 1ヶ月 その他費用
フリーレント 0ヶ月 更新料 1.5ヶ月
築年月 2019年9月 総階数 地上5階 
総戸数 76戸 建物構造 RC造
保険 要加入 保証会社 利用必須
方角 契約形態 普通賃貸借契約
ペット 可  入居可能時期

即入居

SOHO・事務所 不可  取引態様 媒介

※駐輪場・バイク置き場・駐車場の空き状況等詳細につきましてはお問い合わせください。

備考

建物設備

  • エレベーター
  • オートロック
  • 宅配ボックス
  • TVドアホン
  • 駐輪場
  • 防犯カメラ
  • BS
  • CS
  • CATV
  • インターネット

部屋設備

  • 独立洗面台
  • ウォシュレット
  • 浴室乾燥機
  • システムキッチン
  • ガスコンロ
  • エアコン
  • ダブルロックキー
  • フローリング
  • 南向き

※建物周辺情報はGoogleMapを使用しており、物件の表示位置が実際の場所と多少異なる場合があります。

ハーモニーレジデンス武蔵小杉フォレストスクエア の新着マッチングメールを登録する

会員登録するとマッチング機能がご利用いただけます。
ご希望の物件をマッチング登録すると、新着情報がいち早くメールで送られてきます。

0人がマッチング登録中!

【賃貸物件】募集中住戸一覧

5室表示

所在階 間取り 面積 賃料 管理費 敷金/礼金 仲介
手数料
フリー
レント
入居日 検討中 問合せ 詳細
1F 1DK 25.42m2 12.5万円 1.5万円 1ヶ月/1ヶ月 1ヶ月 0ヶ月 即入居   お問い合わせ 詳細
1F 1DK 25.52m2 12.5万円 1.5万円 1ヶ月/1ヶ月 1ヶ月 0ヶ月 即入居   お問い合わせ 詳細
2F 1DK 25.42m2 12.6万円 1.5万円 1ヶ月/1ヶ月 1ヶ月 0ヶ月 即入居   お問い合わせ 詳細
4F 1DK 25.52m2 13.0万円 1.5万円 1ヶ月/1ヶ月 1ヶ月 0ヶ月 5月25日   お問い合わせ 詳細
4F 1DK 25.52m2 13.0万円 1.5万円 1ヶ月/1ヶ月 1ヶ月 0ヶ月 5月上旬   お問い合わせ 詳細
チェックした住戸をまとめてお問い合わせ

最近見た物件

簡単1分!会員登録はこちら