ハーモニーレジデンス武蔵小杉フォレストスクエア 成約済み物件 (11829-215)

ハーモニーレジデンス武蔵小杉フォレストスクエア

賃料 ---円 共益費/管理費 ---円
敷金 ---ヶ月 礼金 ---ヶ月
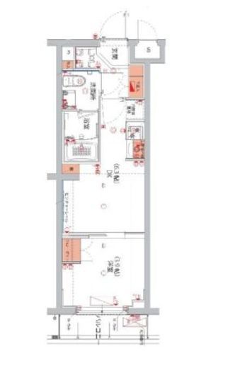
間取り 1DK 専有面積 25.52m2
所在階 2階 入居日 ---
情報登録日 2024年1月4日 情報更新日 2024年1月4日
部屋1 DK6.3帖 部屋2 洋室3.9帖
部屋3 部屋4
部屋5 部屋6
部屋7 部屋8
部屋9 部屋10

ハーモニーレジデンス武蔵小杉フォレストスクエア の新着マッチングメールを登録する

会員登録するとマッチング機能がご利用いただけます。
ご希望の物件をマッチング登録すると、新着情報がいち早くメールで送られてきます。

0人がマッチング登録中!

物件概要

物件名 ハーモニーレジデンス武蔵小杉フォレストスクエア
所在地 神奈川県川崎市中原区小杉町2-207-3
交通 東急目黒線新丸子駅」徒歩9分
東急東横線武蔵小杉駅」徒歩10分
JR南武線武蔵小杉駅」徒歩12分

問い合わせ番号 11829-215
物件特徴 低層マンション
賃料 ---円 共益費/管理費 ---円
間取り 1DK 専有面積 25.52m2
敷金 ---ヶ月 礼金 ---ヶ月
仲介手数料 ---ヶ月 その他費用 ---
フリーレント ---ヶ月 更新料 ---ヶ月
築年月 2019年9月 総階数 地上5階 
総戸数 76戸 建物構造 RC造
保険 要加入 保証会社 利用必須
方角 契約形態 普通賃貸借契約
ペット 不可  入居可能時期

---

SOHO・事務所 不可  取引態様 媒介

※駐輪場・バイク置き場・駐車場の空き状況等詳細につきましてはお問い合わせください。

備考

建物設備

  • エレベーター
  • オートロック
  • 宅配ボックス
  • TVドアホン
  • 駐輪場
  • 防犯カメラ
  • BS
  • CS
  • CATV
  • インターネット

部屋設備

  • 独立洗面台
  • ウォシュレット
  • 浴室乾燥機
  • システムキッチン
  • ガスコンロ
  • エアコン
  • ダブルロックキー
  • フローリング

※建物周辺情報はGoogleMapを使用しており、物件の表示位置が実際の場所と多少異なる場合があります。

ハーモニーレジデンス武蔵小杉フォレストスクエア の新着マッチングメールを登録する

会員登録するとマッチング機能がご利用いただけます。
ご希望の物件をマッチング登録すると、新着情報がいち早くメールで送られてきます。

0人がマッチング登録中!

【賃貸物件】募集中住戸一覧

5室表示

所在階 間取り 面積 賃料 管理費 敷金/礼金 仲介
手数料
フリー
レント
入居日 検討中 問合せ 詳細
1F 1DK 25.52m2 12.5万円 1.5万円 1ヶ月/1ヶ月 1ヶ月 0ヶ月 即入居   お問い合わせ 詳細
2F 1DK 25.42m2 12.6万円 1.5万円 1ヶ月/1ヶ月 1ヶ月 0ヶ月 即入居   お問い合わせ 詳細
2F 1DK 25.52m2 13.0万円 1.5万円 1ヶ月/1ヶ月 1ヶ月 0ヶ月 7月29日   お問い合わせ 詳細
4F 1DK 25.52m2 13.0万円 1.5万円 1ヶ月/1ヶ月 1ヶ月 0ヶ月 5月25日   お問い合わせ 詳細
4F 1DK 25.52m2 13.0万円 1.5万円 1ヶ月/1ヶ月 1ヶ月 0ヶ月 即入居   お問い合わせ 詳細
チェックした住戸をまとめてお問い合わせ

最近見た物件

簡単1分!会員登録はこちら