ホワイトタワー浜松町 成約済み物件 (1155-1409)

WHITE TOWER HAMAMATSUCHO

賃料 ---円 共益費/管理費 ---円
敷金 ---ヶ月 礼金 ---ヶ月
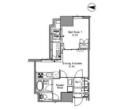
間取り 1LDK 専有面積 40.34m2
所在階 14階 入居日 ---
情報登録日 2023年4月1日 情報更新日 2026年4月23日
部屋1 LDK9.6帖 部屋2 洋室6.5帖
部屋3 部屋4
部屋5 部屋6
部屋7 部屋8
部屋9 部屋10

ホワイトタワー浜松町 の新着マッチングメールを登録する

会員登録するとマッチング機能がご利用いただけます。
ご希望の物件をマッチング登録すると、新着情報がいち早くメールで送られてきます。

0人がマッチング登録中!

物件概要

物件名 ホワイトタワー浜松町
所在地 東京都港区浜松町1-13-2
交通 JR山手線浜松町駅」徒歩3分
都営大江戸線大門駅」徒歩3分
都営浅草線大門駅」徒歩3分
都営三田線御成門駅」徒歩8分
JR山手線新橋駅」徒歩13分
問い合わせ番号 1155-1409
物件特徴 タワーマンション
賃料 ---円 共益費/管理費 ---円
間取り 1LDK 専有面積 40.34m2
敷金 ---ヶ月 礼金 ---ヶ月
仲介手数料 ---ヶ月 その他費用 ---
フリーレント ---ヶ月 更新料 ---ヶ月
築年月 2008年2月 総階数 地上24階 
総戸数 241戸 建物構造 RC造
保険 要加入 保証会社 利用必須
方角 契約形態 普通賃貸借契約
ペット 不可  入居可能時期

---

SOHO・事務所 不可  取引態様 媒介

※駐輪場・バイク置き場・駐車場の空き状況等詳細につきましてはお問い合わせください。

備考

※指定保証会社を利用されない場合は敷金1ヶ月追加となります。

建物設備

  • エレベーター
  • オートロック
  • 宅配ボックス
  • TVドアホン
  • 駐車場
  • 大型駐車場
  • バイク置き場
  • 駐輪場
  • ラウンジ
  • コンシェルジュ
  • 敷地内ゴミ置き場
  • 内廊下
  • 24時間管理
  • 防犯カメラ
  • BS
  • CS
  • CATV
  • インターネット
  • 閑静な住宅街
  • 免震・制震

部屋設備

  • 独立洗面台
  • 追い焚き
  • ウォシュレット
  • 浴室乾燥機
  • システムキッチン
  • ガスコンロ
  • エアコン
  • ダブルロックキー
  • フローリング
  • 角部屋

※建物周辺情報はGoogleMapを使用しており、物件の表示位置が実際の場所と多少異なる場合があります。

ホワイトタワー浜松町 の新着マッチングメールを登録する

会員登録するとマッチング機能がご利用いただけます。
ご希望の物件をマッチング登録すると、新着情報がいち早くメールで送られてきます。

0人がマッチング登録中!

【賃貸物件】募集中住戸一覧

8室表示

所在階 間取り 面積 賃料 管理費 敷金/礼金 仲介
手数料
フリー
レント
入居日 検討中 問合せ 詳細
2F 1R 30.53m2 16.8万円 1.0万円 2ヶ月/1ヶ月 0ヶ月 1ヶ月 5月下旬   お問い合わせ 詳細
7F 1LDK 41.59m2 30.5万円 1.0万円 2ヶ月/1ヶ月 0ヶ月 1ヶ月 即入居   お問い合わせ 詳細
8F 1LDK 43.94m2 32.2万円 1.0万円 2ヶ月/1ヶ月 0ヶ月 1ヶ月 即入居   お問い合わせ 詳細
12F 1SLDK 47.39m2 28.0万円 1.0万円 2ヶ月/1ヶ月 0ヶ月 1ヶ月 即入居   お問い合わせ 詳細
14F 1LDK 41.2m2 29.0万円 1.0万円 2ヶ月/1ヶ月 0ヶ月 1ヶ月 即入居   お問い合わせ 詳細
15F 1DK 41.2m2 25.5万円 1.0万円 2ヶ月/1ヶ月 0ヶ月 1ヶ月 5月下旬   お問い合わせ 詳細
17F 1LDK 39.32m2 27.4万円 1.0万円 2ヶ月/1ヶ月 0ヶ月 1ヶ月 5月中旬   お問い合わせ 詳細
23F 3LDK 72.24m2 58.0万円 2.0万円 2ヶ月/1ヶ月 0ヶ月 1ヶ月 即入居   お問い合わせ 詳細
チェックした住戸をまとめてお問い合わせ

最近見た物件

簡単1分!会員登録はこちら