パークタワー勝どきミッド/サウス 成約済み物件 (10152-M3623)

PARK TOWER 勝どきミッド/サウス

賃料 ---円 共益費/管理費 ---円
敷金 ---ヶ月 礼金 ---ヶ月
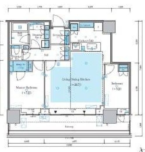
間取り 2LDK+WIC 専有面積 73.29m2
所在階 36階 入居日 ---
情報登録日 2025年10月16日 情報更新日 2025年12月25日
部屋1 LDK 部屋2 洋室
部屋3 洋室 部屋4
部屋5 部屋6
部屋7 部屋8
部屋9 部屋10

パークタワー勝どきミッド/サウス の新着マッチングメールを登録する

会員登録するとマッチング機能がご利用いただけます。
ご希望の物件をマッチング登録すると、新着情報がいち早くメールで送られてきます。

3人がマッチング登録中!

物件概要

物件名 パークタワー勝どきミッド/サウス
所在地 東京都中央区勝どき4-5-16
交通 都営大江戸線勝どき駅」徒歩1分



問い合わせ番号 10152-M3623
物件特徴 タワーマンション、分譲賃貸
賃料 ---円 共益費/管理費 ---円
間取り 2LDK 専有面積 73.29m2
敷金 ---ヶ月 礼金 ---ヶ月
仲介手数料 ---ヶ月 その他費用 ---
フリーレント ---ヶ月 更新料 ---ヶ月
築年月 2023年8月 総階数 地上58階 地下3階
総戸数 2,786戸 建物構造 RC造
保険 要加入 保証会社 利用必須
方角 契約形態 定期借家契約 3年間(再契約相談可)
ペット 不可  入居可能時期

---

SOHO・事務所 不可  取引態様 媒介

※駐輪場・バイク置き場・駐車場の空き状況等詳細につきましてはお問い合わせください。

備考

建物設備

  • エレベーター
  • オートロック
  • 宅配ボックス
  • TVドアホン
  • 駐車場
  • 大型駐車場
  • バイク置き場
  • 駐輪場
  • ラウンジ
  • コンシェルジュ
  • フィットネスジム
  • ゲストルーム
  • パーティールーム
  • ゴルフレンジ
  • シアタールーム
  • 敷地内ゴミ置き場
  • 各階ゴミ置き場
  • 内廊下
  • 防犯カメラ
  • BS
  • CS
  • CATV
  • インターネット

部屋設備

  • 独立洗面台
  • 追い焚き
  • ウォシュレット
  • 浴室乾燥機
  • システムキッチン
  • カウンターキッチン
  • ディスポーザー
  • 食器洗浄機
  • 浄水器
  • ガスコンロ
  • 床暖房
  • エアコン
  • ウォークインクローゼット
  • ダブルロックキー
  • フローリング
  • 南向き

※建物周辺情報はGoogleMapを使用しており、物件の表示位置が実際の場所と多少異なる場合があります。

パークタワー勝どきミッド/サウス の新着マッチングメールを登録する

会員登録するとマッチング機能がご利用いただけます。
ご希望の物件をマッチング登録すると、新着情報がいち早くメールで送られてきます。

3人がマッチング登録中!

【賃貸物件】募集中住戸一覧

25室表示(会員登録すると28室閲覧できます)

所在階 間取り 面積 賃料 管理費 敷金/礼金 仲介
手数料
フリー
レント
入居日 検討中 問合せ 詳細
4F 1LDK 57.99m2 36.5万円 0万円 1ヶ月/2ヶ月 1ヶ月 0ヶ月 相談   お問い合わせ 詳細
6F 1LDK 36.57m2 26.0万円 1.1万円 0ヶ月/1ヶ月 0.5ヶ月 0ヶ月 相談   お問い合わせ 詳細
7F 1LDK 45.25m2 30.3万円 0万円 1ヶ月/1.5ヶ月 0.5ヶ月 0ヶ月 即入居   お問い合わせ 詳細
9F 1LDK 45.42m2 28.3万円 2.0万円 1ヶ月/0ヶ月 0ヶ月 0ヶ月 即入居   お問い合わせ 詳細
9F 2LDK 56.52m2 39.4万円 0万円 1ヶ月/2ヶ月 1ヶ月 0ヶ月 6月下旬   お問い合わせ 詳細
10F 3LDK 75.98m2 45.0万円 2.0万円 2ヶ月/1ヶ月 1ヶ月 0ヶ月 相談   お問い合わせ 詳細
10F 1LDK 45.25m2 28.5万円 2.0万円 1ヶ月/1ヶ月 0ヶ月 0ヶ月 即入居   お問い合わせ 詳細
11F 1LDK 44.31m2 26.2万円 2.0万円 1ヶ月/1ヶ月 0ヶ月 0ヶ月 即入居   お問い合わせ 詳細
11F 2LDK 57.83m2 37.9万円 2.0万円 1ヶ月/0ヶ月 0ヶ月 0ヶ月 5月下旬   お問い合わせ 詳細
11F 1K 31.29m2 18.0万円 2.0万円 1ヶ月/1ヶ月 0ヶ月 0ヶ月 即入居   お問い合わせ 詳細
12F 2LDK 76.32m2 50.4万円 0万円 1ヶ月/1.5ヶ月 0.5ヶ月 0ヶ月 5月下旬   お問い合わせ 詳細
13F 2LDK 60.25m2 37.4万円 2.0万円 1ヶ月/2ヶ月 1ヶ月 0ヶ月 即入居   お問い合わせ 詳細
14F 1LDK 36.57m2 24.5万円 0万円 1ヶ月/2ヶ月 1ヶ月 0ヶ月 6月下旬   お問い合わせ 詳細
16F 1LDK 54.56m2 35.0万円 0万円 1ヶ月/2ヶ月 1ヶ月 0ヶ月 6月下旬   お問い合わせ 詳細
17F 1SLDK 47.77m2 31.9万円 0万円 1ヶ月/1.5ヶ月 0.5ヶ月 0ヶ月 5月下旬   お問い合わせ 詳細
19F 1LDK 46.21m2 31.9万円 2.0万円 1ヶ月/1ヶ月 1ヶ月 0ヶ月 5月下旬   お問い合わせ 詳細
23F 3LDK 73.94m2 48.0万円 2.0万円 1ヶ月/1ヶ月 1ヶ月 0ヶ月 相談   お問い合わせ 詳細
23F 2LDK 73.1m2 44.0万円 2.0万円 1ヶ月/1ヶ月 1ヶ月 0ヶ月 5月下旬   お問い合わせ 詳細
26F 1LDK 50.01m2 30.9万円 2.0万円 1ヶ月/0ヶ月 0ヶ月 0ヶ月 即入居   お問い合わせ 詳細
30F 2LDK 72.46m2 54.0万円 4.0万円 0ヶ月/2ヶ月 0ヶ月 0ヶ月 相談   お問い合わせ 詳細
37F 2LDK 56.89m2 37.5万円 2.0万円 2ヶ月/1ヶ月 1ヶ月 0ヶ月 相談   お問い合わせ 詳細
43F 3LDK 72.38m2 46.8万円 2.6万円 1ヶ月/1ヶ月 0.5ヶ月 0ヶ月 即入居   お問い合わせ 詳細
45F 2LDK 56.71m2 36.9万円 2.0万円 1ヶ月/1ヶ月 0ヶ月 0ヶ月 即入居   お問い合わせ 詳細
48F 1LDK 56.71m2 40.6万円 0万円 1ヶ月/1ヶ月 0.5ヶ月 0ヶ月 5月下旬   お問い合わせ 詳細
52F 3LDK 72.38m2 62.8万円 2.5万円 1ヶ月/1ヶ月 1ヶ月 0ヶ月 8月10日   お問い合わせ 詳細

その他15件を表示

チェックした住戸をまとめてお問い合わせ
簡単1分!会員登録はこちら